
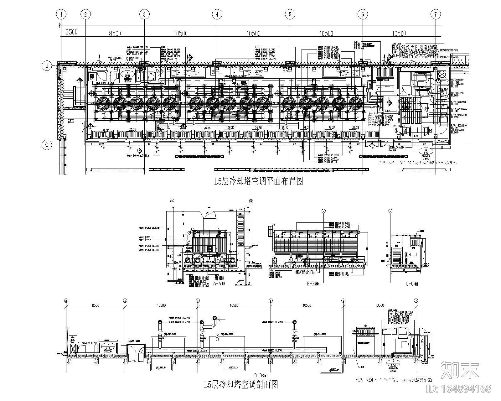
南京香格里拉大酒店冷却塔大样图CAD下载
ID: 164894168
复制
上传作者
168533991
168533991上传时间2020-06-23
文件大小9.36M
设计风格:其他
CAD版本:CAD2000
包含文件:CAD
授权普通
立即下载
收藏
分享
举报
相关推荐
综合
电气工程节点
暖通节点
给排水节点详图
电气节点
水处理节点
其他电气工程节点

168533991上传时间2020-06-23
文件大小9.36M
设计风格:其他
CAD版本:CAD2000
包含文件:CAD
授权普通