1/7
![[河北]某五星级豪华酒店行政酒廊室内装修施工图(含效果...施工图下载【ID:161949185】](https://image2.znzmo.com/e58304a41cbf3fae27ff5533ae7fdd69df722df0_2.jpg)
![[河北]某五星级豪华酒店行政酒廊室内装修施工图(含效果...施工图下载【ID:161949185】](https://image2.znzmo.com/e58304a41cbf3fae27ff5533ae7fdd69df722df0_2.jpg)
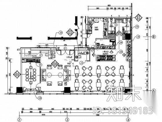
[河北]某五星级豪华酒店行政酒廊室内装修CAD(含...
ID: 161949185
复制
上传作者
581316311
581316311上传时间2020-05-29
文件大小4.99M
设计风格:现代简约
CAD版本:CAD2000
包含文件:CAD
授权普通
立即下载
收藏
分享
举报
相关推荐
综合
酒店
酒店餐厅
酒店大堂
酒店公区
酒店客房
酒店卫生间
酒店套房
酒店宴会厅
其他酒店
![[河北]某五星级豪华酒店行政酒廊室内装修施工图(含效果...施工图下载【ID:161949185】](https://image2.znzmo.com/e58304a41cbf3fae27ff5533ae7fdd69df722df0_2.jpg)
![[河北]某五星级豪华酒店行政酒廊室内装修施工图(含效果...施工图下载【ID:161949185】](https://image2.znzmo.com/e58304a41cbf3fae27ff5533ae7fdd69df722df0_2.jpg)
581316311上传时间2020-05-29
文件大小4.99M
设计风格:现代简约
CAD版本:CAD2000
包含文件:CAD
授权普通