1/4
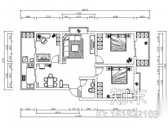
现代风格三居室设计方案(含效果)施工图下载【ID:161922103】

现代风格三居室设计方案(含效果)CAD下载

ID: 161922103
复制
上传作者
464455812464455812

上传时间2020-05-29

文件大小4.7M

设计风格:现代简约

CAD版本:CAD2000

包含文件:CAD

授权普通

立即下载
收藏
分享
举报
相关推荐
综合
平层
大平层
小户型平层
超大型平层