1/7
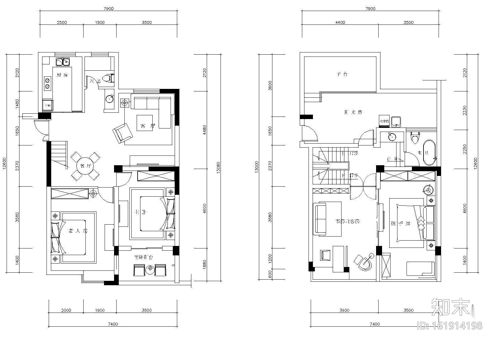
现代住宅空间装修图(含实景)施工图下载【ID:161914198】

现代住宅空间装修图(含实景)CAD下载

ID: 161914198
复制
上传作者
435373544435373544

上传时间2020-05-29

文件大小11.86M

设计风格:现代简约

CAD版本:CAD2000

包含文件:CAD

授权普通

立即下载
收藏
分享
举报
相关推荐
综合
平层
大平层
小户型平层
超大型平层