1/10


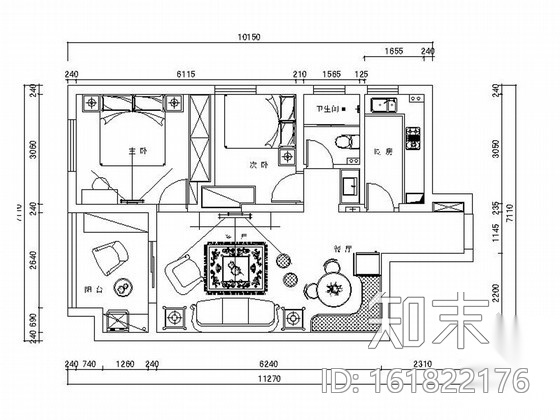
精品清新现代风格两居室室内装修设计CAD(含效果)...
ID: 161822176
复制
上传作者
949334766
949334766上传时间2020-05-29
文件大小7.58M
设计风格:现代简约
CAD版本:CAD2000
包含文件:CAD
授权普通
立即下载
收藏
分享
举报
相关推荐
综合
平层
大平层
小户型平层
超大型平层


949334766上传时间2020-05-29
文件大小7.58M
设计风格:现代简约
CAD版本:CAD2000
包含文件:CAD
授权普通