1/10
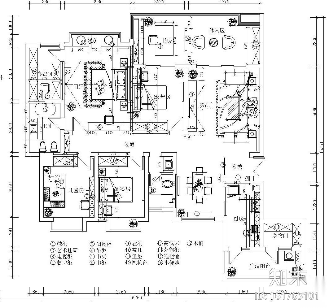
180㎡新中式佛系住宅施工图设计(附高清效果图)施工图下载【ID:161765101】

180㎡新中式佛系住宅CAD设计(附高清效果图)C...

ID: 161765101
复制
上传作者
621343331621343331

上传时间2020-05-29

文件大小9.26M

设计风格:中式

CAD版本:CAD2000

包含文件:CAD

授权普通

立即下载
收藏
分享
举报
相关推荐
综合
平层
大平层
小户型平层
超大型平层