1/11


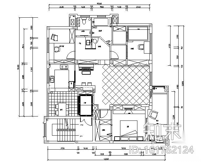
田园风花花世界主题四居室住宅设计CAD(附效果图)...
ID: 161762124
复制
上传作者
596177882
596177882上传时间2020-05-29
文件大小26.26M
设计风格:其他
CAD版本:CAD2000
包含文件:CAD
授权普通
立即下载
收藏
分享
举报
相关推荐
综合
平层
大平层
小户型平层
超大型平层


596177882上传时间2020-05-29
文件大小26.26M
设计风格:其他
CAD版本:CAD2000
包含文件:CAD
授权普通