1/6


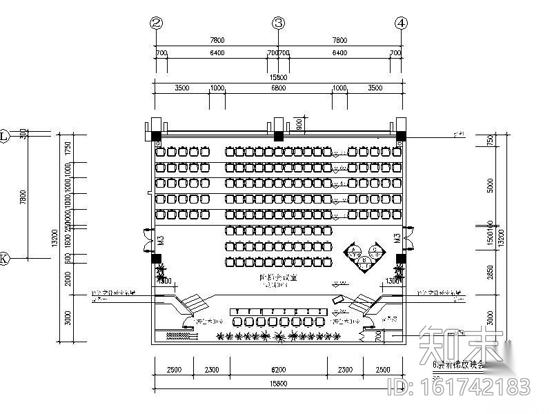
某指挥中心办公楼装修图(含效果)CAD下载
ID: 161742183
复制
上传作者
489222678
489222678上传时间2020-05-29
文件大小7.77M
设计风格:现代简约
CAD版本:CAD2000
包含文件:CAD
授权普通
立即下载
收藏
分享
举报
相关推荐
综合
公共空间
市政单位
其他公共空间
公共卫生间
宿舍
门头
服务中心
活动中心
会展
母婴室


489222678上传时间2020-05-29
文件大小7.77M
设计风格:现代简约
CAD版本:CAD2000
包含文件:CAD
授权普通