1/11
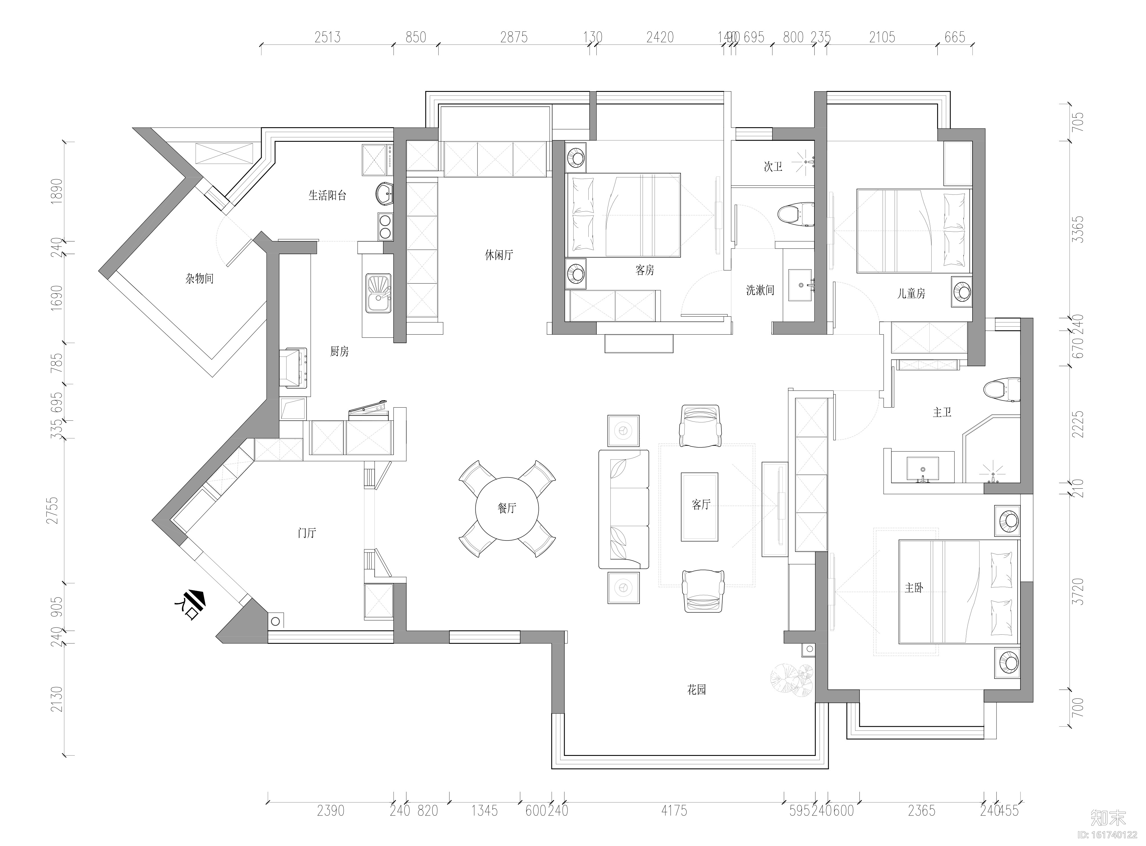
成都市仁和春天国际花园三居室样板间施工图施工图下载【ID:161740122】

成都市仁和春天国际花园三居室样板间CADCAD下载

ID: 161740122
复制
上传作者
477267823477267823

上传时间2020-05-29

文件大小265.25M

设计风格:其他

CAD版本:CAD2000

包含文件:CAD

授权普通

立即下载
收藏
分享
举报
相关推荐
综合
平层
大平层
小户型平层
超大型平层