1/13


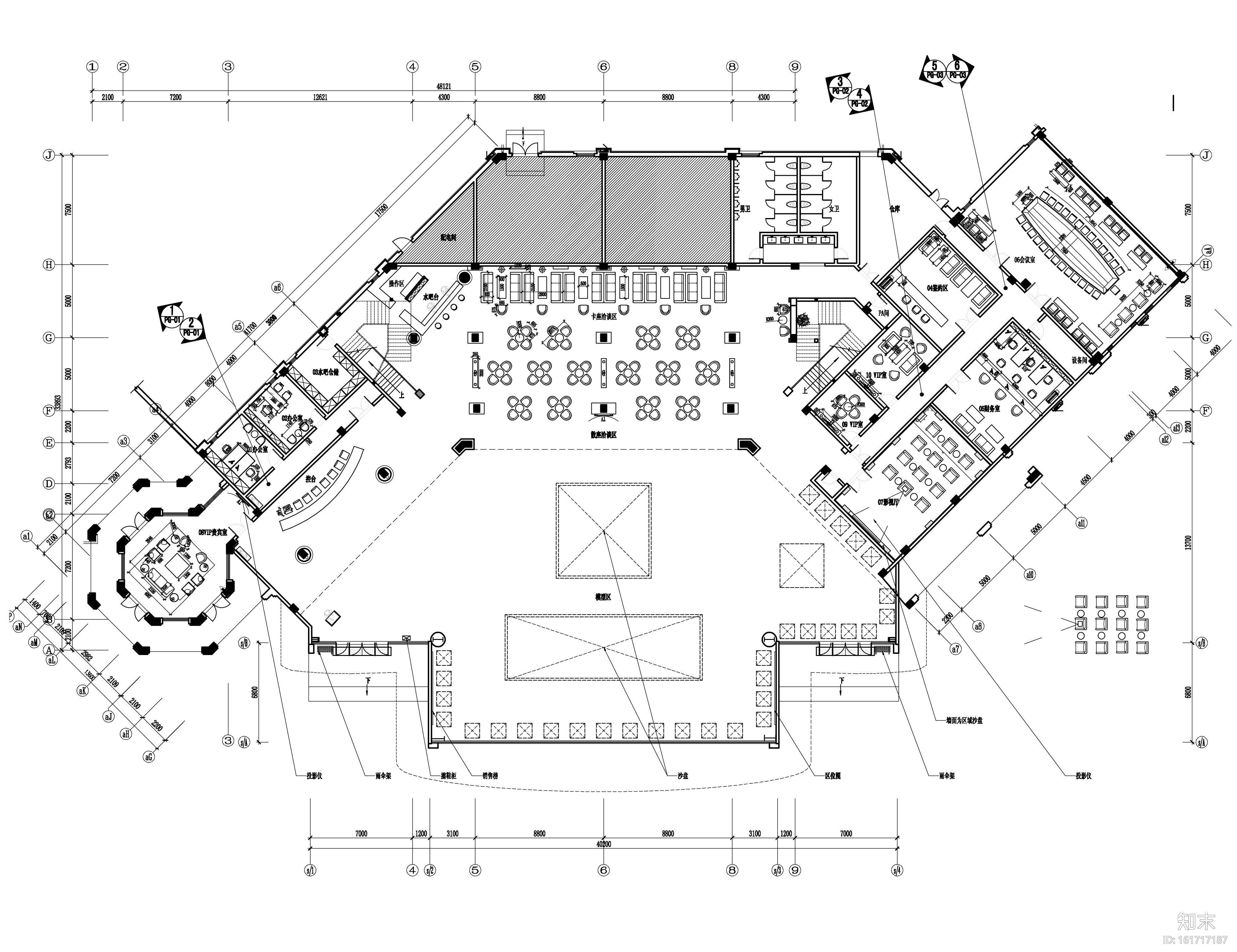
欧式风格大型房地产售楼处装修CAD(附效果图)CA...
ID: 161717187
复制
上传作者
378392998
378392998上传时间2020-05-29
文件大小57.26M
设计风格:欧式简约
CAD版本:CAD2000
包含文件:CAD
授权普通
立即下载
收藏
分享
举报
相关推荐
综合
商业空间
售楼处
商场
其他商业空间
超市
服装店
书店
美甲店
珠宝店
4s店


378392998上传时间2020-05-29
文件大小57.26M
设计风格:欧式简约
CAD版本:CAD2000
包含文件:CAD
授权普通