1/10
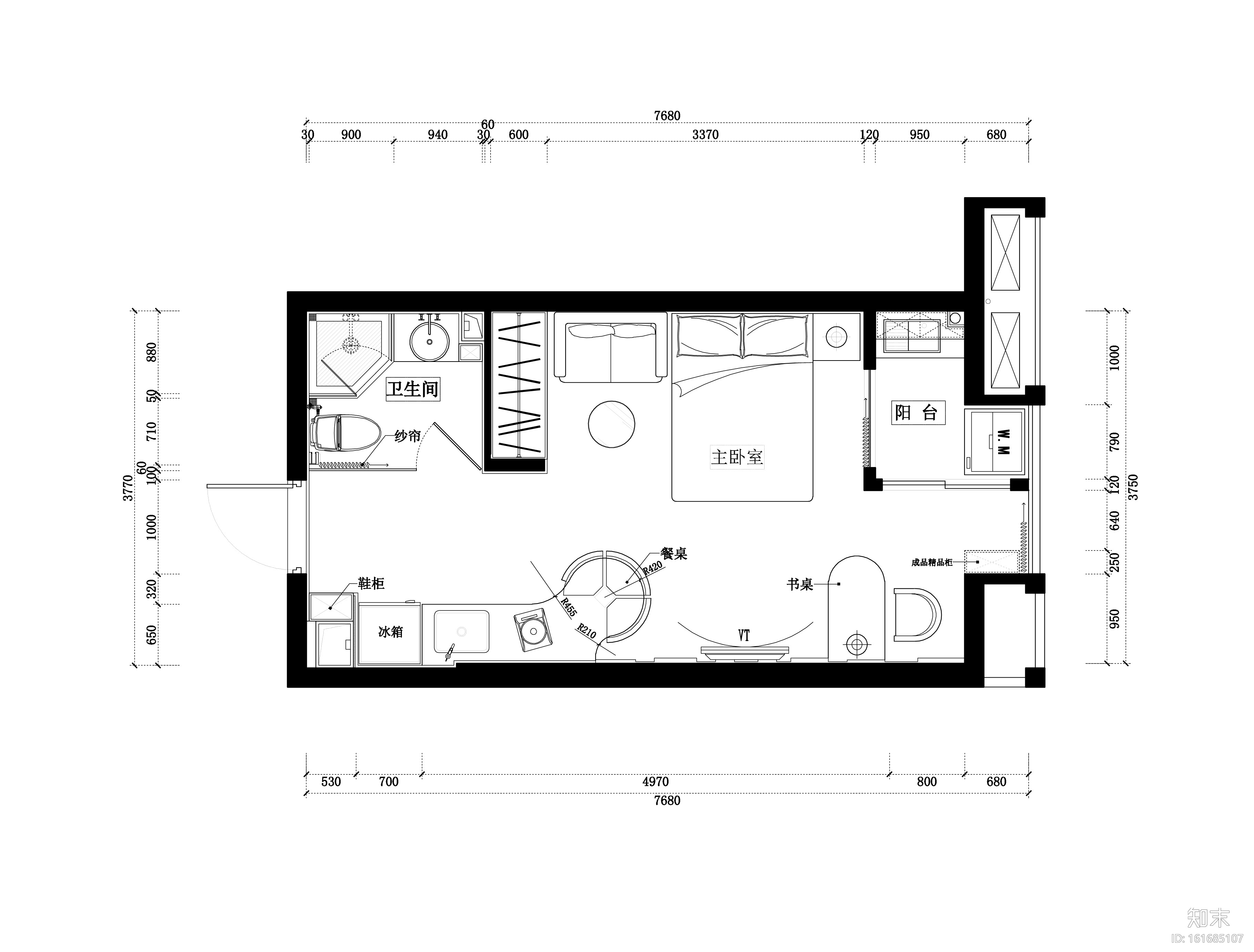
[北京]凯隆地产两套现代风格一居室样板房室内设计施工图施工图下载【ID:161685107】

[北京]凯隆地产两套现代风格一居室样板房室内设计C...

ID: 161685107
复制
上传作者
298342119298342119

上传时间2020-05-29

文件大小7M

设计风格:现代简约

CAD版本:CAD2000

包含文件:CAD

授权普通

立即下载
收藏
分享
举报
相关推荐
综合
平层
大平层
小户型平层
超大型平层