1/21


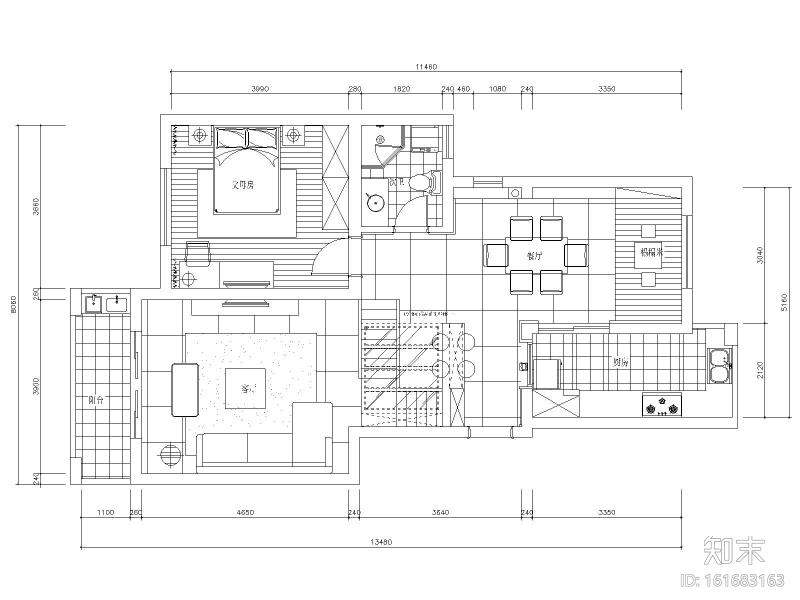
150平复式加跃层公寓装修CAD+效果图CAD下载
ID: 161683163
复制
上传作者
294348263
294348263上传时间2020-05-29
文件大小71.23M
设计风格:其他
CAD版本:CAD2000
包含文件:CAD
授权普通
立即下载
收藏
分享
举报
相关推荐
综合
公寓
复式公寓
loft公寓
单身公寓
酒店公寓


294348263上传时间2020-05-29
文件大小71.23M
设计风格:其他
CAD版本:CAD2000
包含文件:CAD
授权普通