1/14


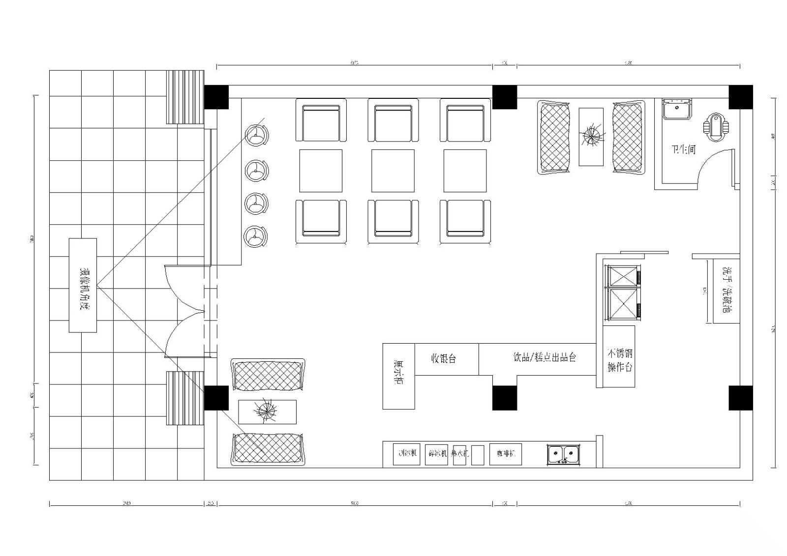
奶茶咖啡店设计CAD_附效果图CAD下载
ID: 160425115
复制
上传作者
432293183
432293183上传时间2020-05-29
文件大小4.19M
设计风格:其他
CAD版本:CAD2000
包含文件:CAD
授权普通
立即下载
收藏
分享
举报
相关推荐
综合
餐饮空间
奶茶店
中餐厅
西餐厅
快餐店
自助餐厅
茶餐厅
其他餐饮空间
食堂
咖啡厅


432293183上传时间2020-05-29
文件大小4.19M
设计风格:其他
CAD版本:CAD2000
包含文件:CAD
授权普通