1/12


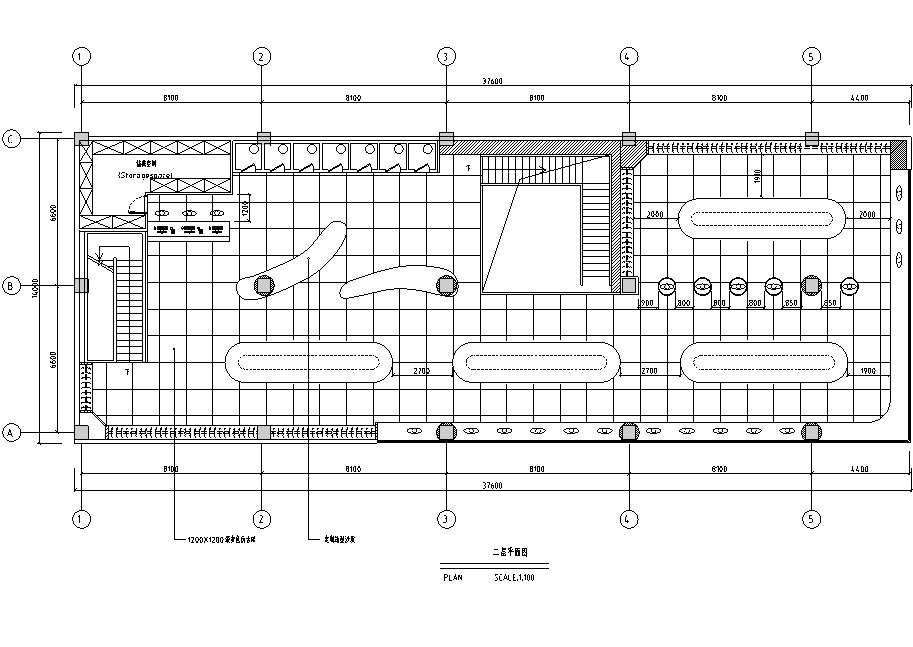
现代服装店设计CAD(附效果图)CAD下载
ID: 160416182
复制
上传作者
424374143
424374143上传时间2020-05-29
文件大小6.05M
设计风格:现代简约
CAD版本:CAD2000
包含文件:CAD
授权普通
立即下载
收藏
分享
举报
相关推荐
综合
商业空间
服装店
售楼处
商场
其他商业空间
超市
书店
美甲店
珠宝店
4s店


424374143上传时间2020-05-29
文件大小6.05M
设计风格:现代简约
CAD版本:CAD2000
包含文件:CAD
授权普通