1/9
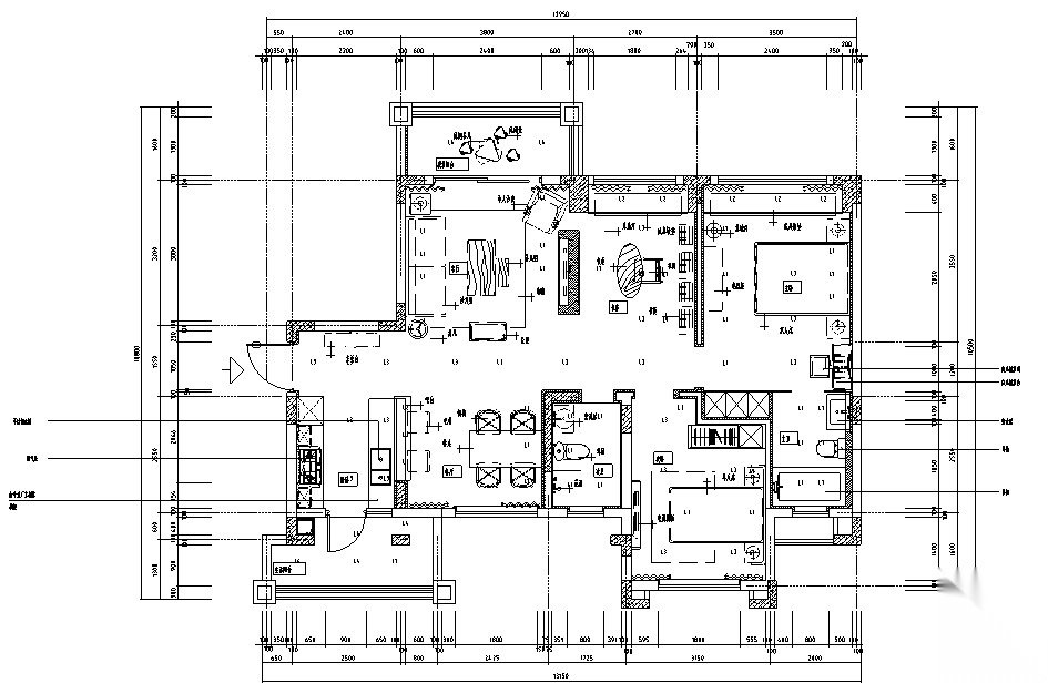
[成都](含实景图)三室两厅样板间详细全套装修施工图施工图下载【ID:160388187】

[成都](含实景图)三室两厅样板间详细全套装修CA...

ID: 160388187
复制
上传作者
389652965389652965

上传时间2020-05-29

文件大小31.83M

设计风格:其他

CAD版本:CAD2000

包含文件:CAD

授权普通

立即下载
收藏
分享
举报
相关推荐
综合
平层
大平层
小户型平层
超大型平层