1/20
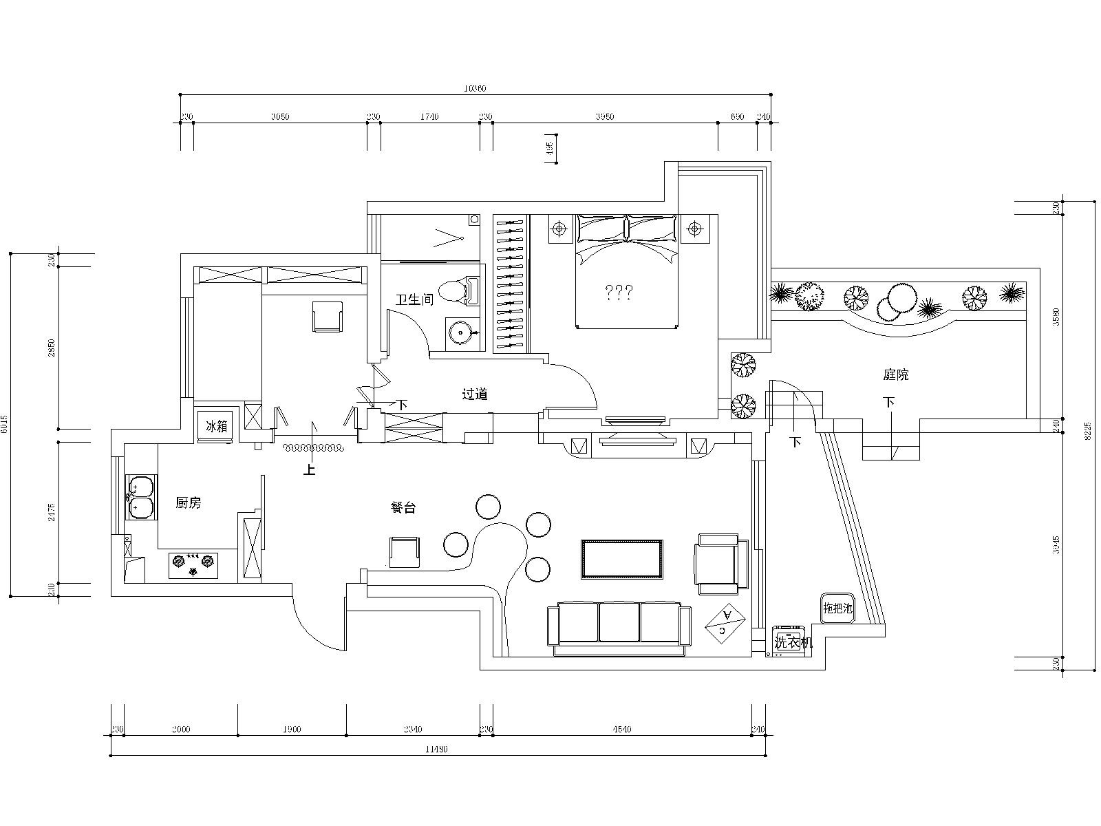
常熟110平两居室住宅装修施工图+效果图施工图下载【ID:160099164】

常熟110平两居室住宅装修CAD+效果图CAD下载

ID: 160099164
复制
上传作者
352933522352933522

上传时间2020-05-29

文件大小56.94M

设计风格:其他

CAD版本:CAD2000

包含文件:CAD

授权普通

立即下载
收藏
分享
举报
相关推荐
综合
平层
大平层
小户型平层
超大型平层