CAD频道
CAD图库
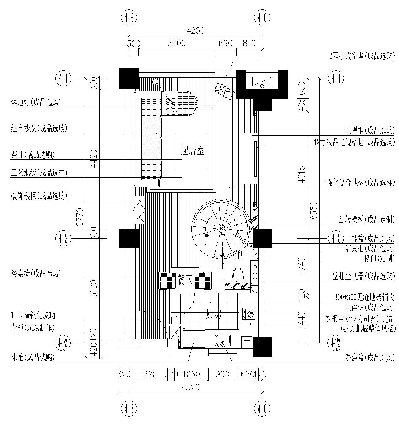
现代简约风复式单身公寓施工图设计(附效果图)
1/
9
Previous
Next
现代简约风复式单身公寓CAD设计(附效果图)CAD...
ID: 160061123
复制
上传作者
344619693
上传时间
2020-05-29
文件大小
1.38M
设计风格:
现代简约
CAD版本:
CAD2000
包含文件:
CAD
授权
普通
价格:
40知币
VIP专享价:
0
知币
开通VIP仅需0.16元/天>
VIP免费下载
收藏
分享
举报
相关推荐
综合
公寓
复式公寓
loft公寓
单身公寓
酒店公寓