CAD频道
CAD图库
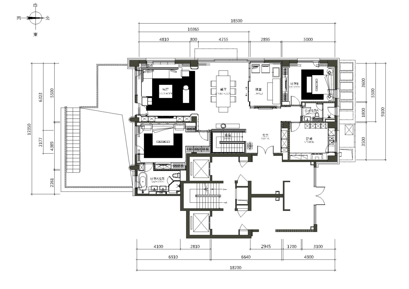
[北京]-万柳书院4#楼C型住宅施工图+效果图 平层
1/
21
Previous
Next
[北京]-万柳书院4#楼C型住宅CAD+效果图CA...
ID: 160015195
复制
上传作者
336777973
上传时间
2020-05-29
文件大小
204.22M
设计风格:
其他
CAD版本:
CAD2000
包含文件:
CAD
授权
普通
价格:
40知币
VIP专享价:
0
知币
VIP免费下载
收藏
分享
举报
相关推荐
综合
平层
大平层
小户型平层
超大型平层