CAD频道
CAD图库
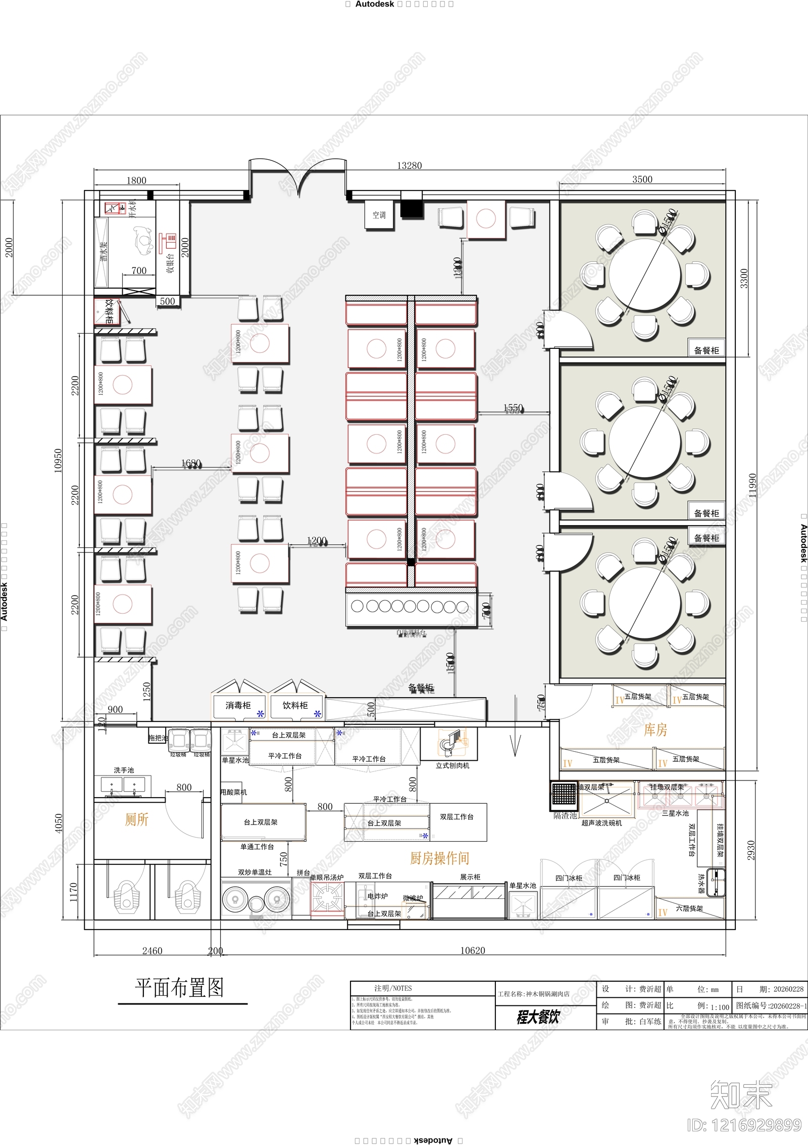
工装平面图 200㎡涮锅店 小火锅店 室内平面图 施工图
工装平面图CAD下载
ID: 1216929899
复制
上传作者
智取怂猫河
上传时间
2026-04-25
文件大小
2.91M
设计风格:
--
CAD版本:
CAD2007
包含文件:
CAD
授权
独家
立即下载
收藏
分享
举报
相关推荐
综合
平面图
工装平面图
景观平面图
规划平面图
其他平面图
小区平面图