CAD频道
CAD图库
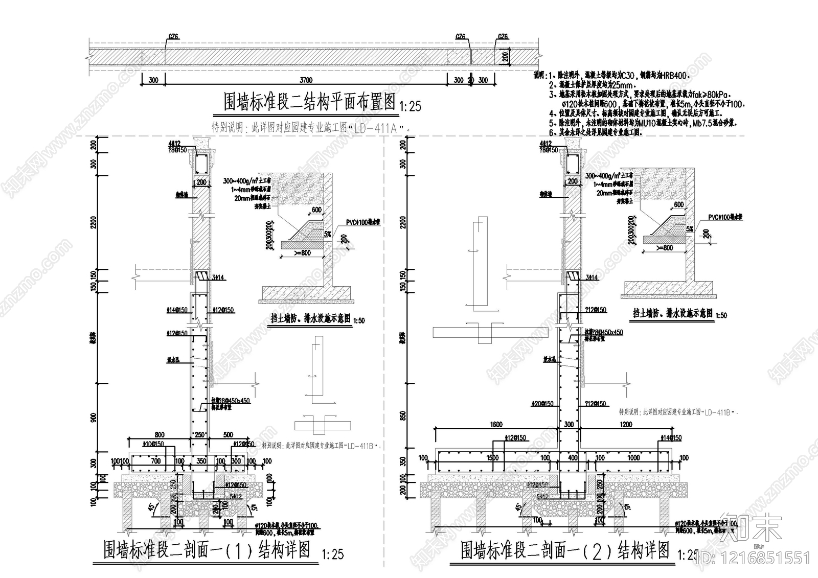
中式围墙 中式围墙标准段节 施工图
1/
3
Previous
Next
中式围墙CAD下载
ID: 1216851551
复制
上传作者
小趴菜园
上传时间
2026-04-24
文件大小
1.35M
设计风格:
--
CAD版本:
CAD2004
包含文件:
CAD
授权
独家
立即下载
收藏
分享
举报
相关推荐
综合
景观小品
围墙
亭子
廊架
景墙
综合景观小品
雨棚
挡土墙
入口
景观坐凳