CAD频道
CAD图库
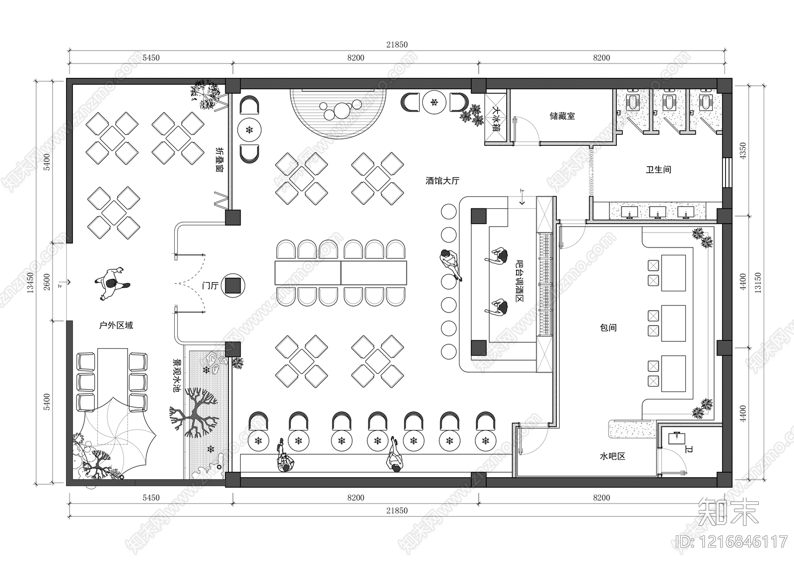
现代酒吧 酒馆 清吧 露营酒吧 酒吧 小酒馆平面图 施工图
现代酒吧CAD下载
ID: 1216846117
复制
上传作者
小芋头&
上传时间
2026-04-23
文件大小
1.66M
设计风格:
--
CAD版本:
CAD2004
包含文件:
CAD
授权
独家
立即下载
收藏
分享
举报
相关推荐
综合
休闲娱乐空间
酒吧
会所
美容院
理发店
电影院
茶馆
健身房
KTV
网吧