CAD频道
CAD图库
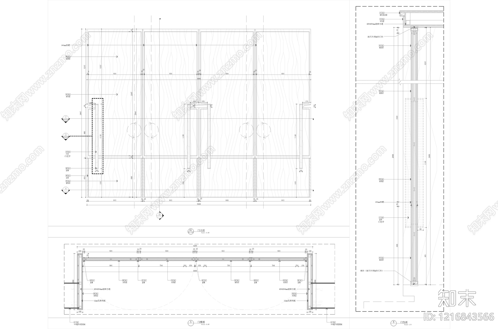
综合门节点 造型平开门节点 艺术门平立剖 施工图
综合门节点CAD下载
ID: 1216843566
复制
上传作者
小杰哥哥
上传时间
2026-04-23
文件大小
2.39M
设计风格:
--
CAD版本:
CAD2014
包含文件:
CAD
授权
独家
立即下载
收藏
分享
举报
相关推荐
综合
门节点
综合门节点
入户门
铁艺大门
月洞门
玻璃门节点
推拉门节点
隐形门节点