CAD频道
CAD图库
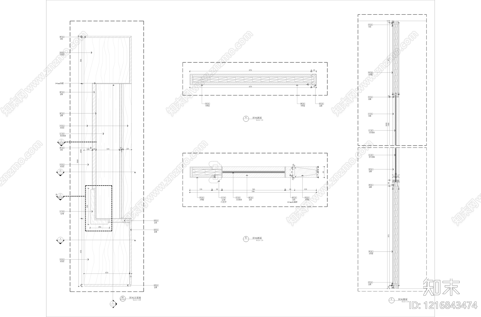
现代其他节点详图 屏风平立剖 造型屏风节点 施工图
现代其他节点详图CAD下载
ID: 1216843474
复制
上传作者
小杰哥哥
上传时间
2026-04-23
文件大小
1.62M
设计风格:
--
CAD版本:
CAD2014
包含文件:
CAD
授权
独家
立即下载
收藏
分享
举报
相关推荐
综合
节点详图
其他节点详图
吊顶节点
墙面节点
地面节点
门节点
建筑工程节点
景观小品
楼梯节点
水景