CAD频道
CAD图库
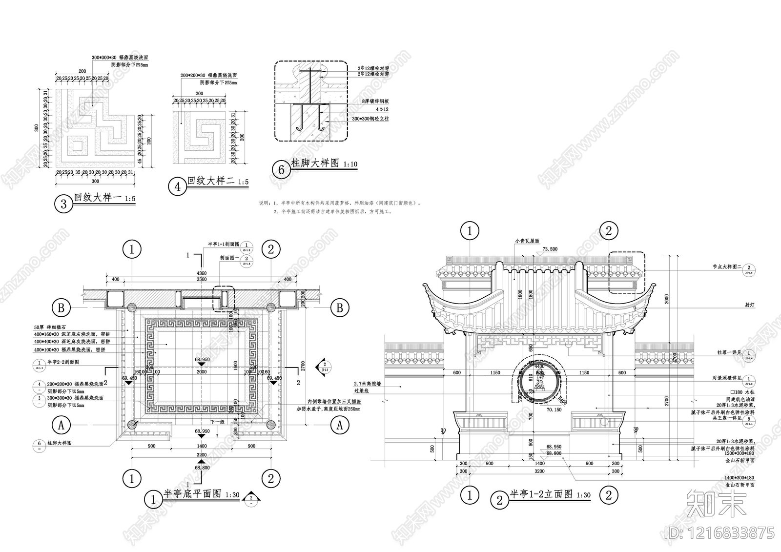
中式亭子 景观亭 半亭 施工图
1/
3
Previous
Next
中式亭子CAD下载
ID: 1216833875
复制
上传作者
布布大王
上传时间
2026-04-23
文件大小
1.42M
设计风格:
--
CAD版本:
天正建筑 2014
包含文件:
CAD
授权
独家
立即下载
收藏
分享
举报
相关推荐
综合
景观小品
亭子
廊架
景墙
综合景观小品
雨棚
围墙
挡土墙
入口
景观坐凳