CAD频道
CAD图库
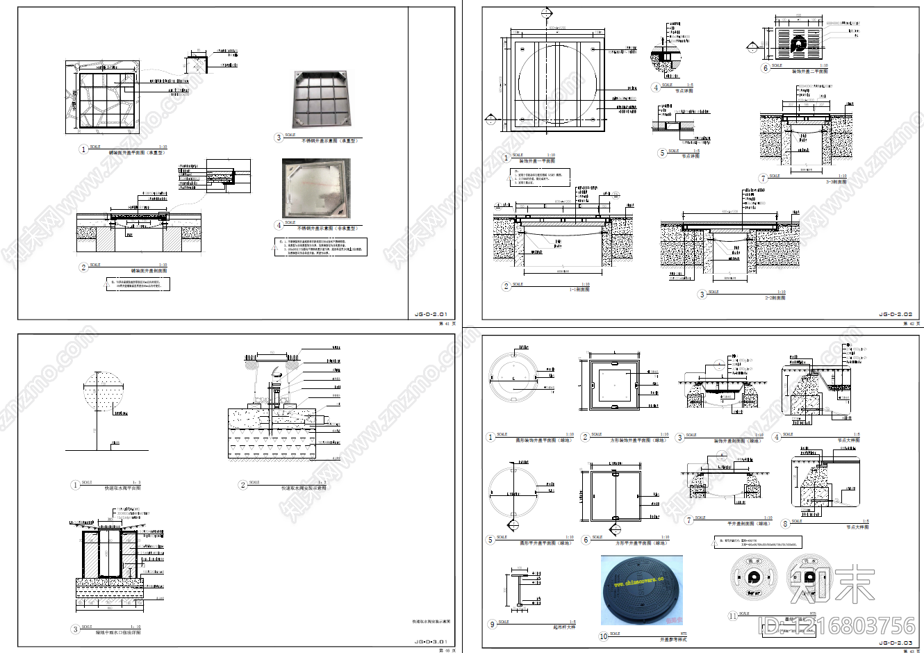
现代综合景观小品 硬地装饰井盖 绿地装饰井盖 取水口 施工图
现代综合景观小品CAD下载
ID: 1216803756
复制
上传作者
爱国者。(互关)
上传时间
2026-04-23
文件大小
27.68M
设计风格:
--
CAD版本:
CAD2006
包含文件:
CAD
授权
独家
立即下载
收藏
分享
举报
相关推荐
综合
景观小品
综合景观小品
亭子
廊架
景墙
雨棚
围墙
挡土墙
入口
景观坐凳