CAD频道
CAD图库
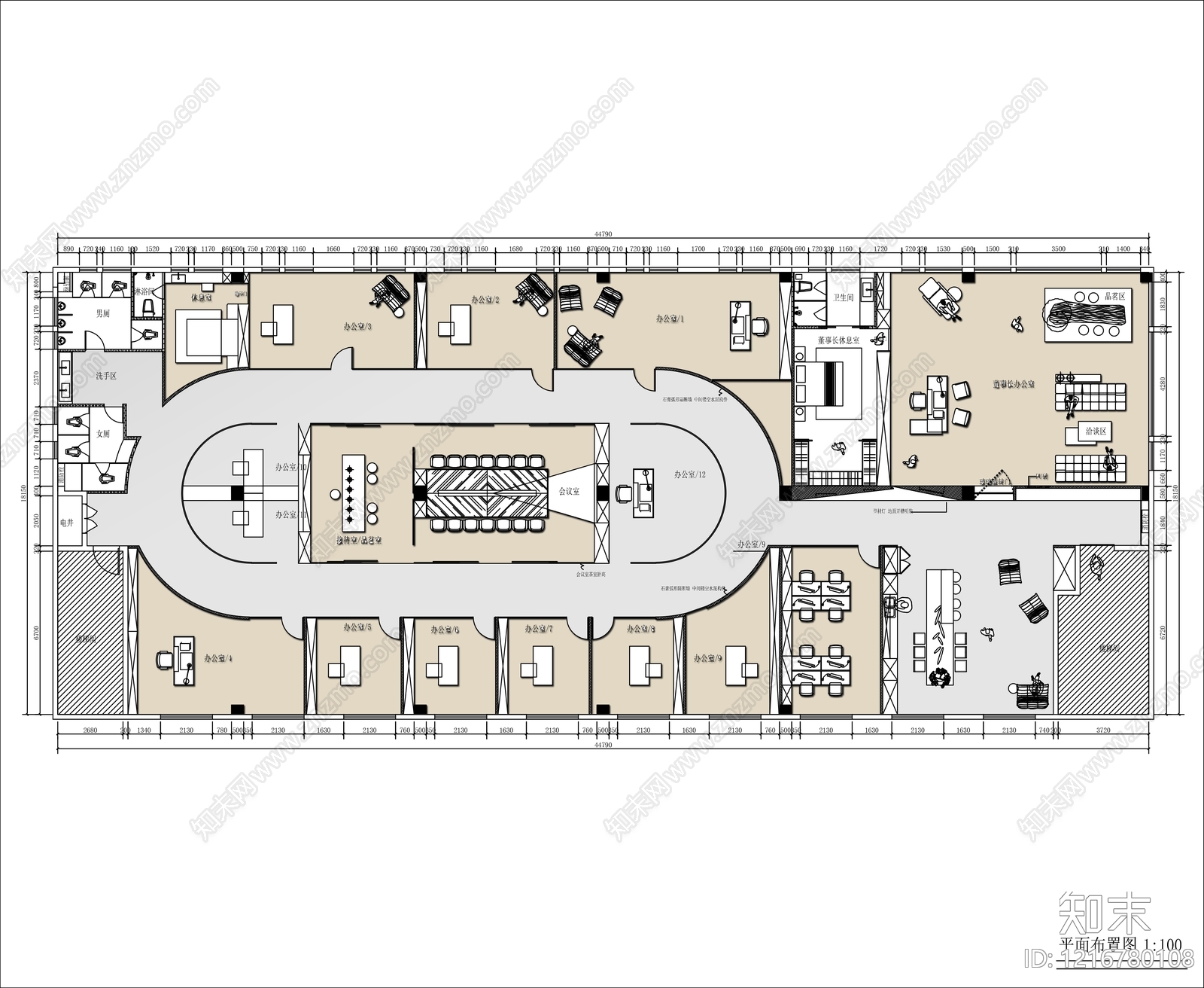
现代整体办公空间 直播公司 办公室 创意布局 施工图
1/
4
Previous
Next
现代整体办公空间CAD下载
ID: 1216780108
复制
上传作者
灵感碎片
上传时间
2026-04-22
文件大小
14.63M
设计风格:
--
CAD版本:
CAD2010
包含文件:
CAD
授权
独家
立即下载
收藏
分享
举报
相关推荐
综合
办公空间
整体办公空间
开放办公室
会议室
休息室
独立办公室
直播间
茶水间
接待室
工作室