CAD频道
CAD图库
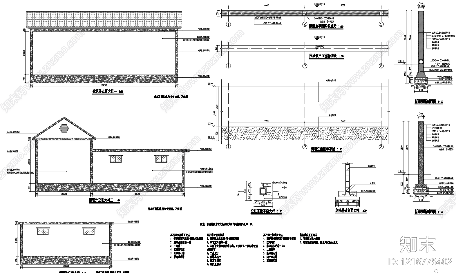
乡村改造 村长墙面粉刷新砌 乡村墙面整治 墙面粉刷 施工图
乡村改造CAD下载
ID: 1216778402
复制
上传作者
卡皮巴拉
上传时间
2026-04-22
文件大小
0.1M
设计风格:
--
CAD版本:
T20 天正建筑 V5.0
包含文件:
CAD
授权
独家
立即下载
收藏
分享
举报
相关推荐
综合
乡村景观
乡村改造
乡村振兴
其他乡村景观
农场