CAD频道
CAD图库
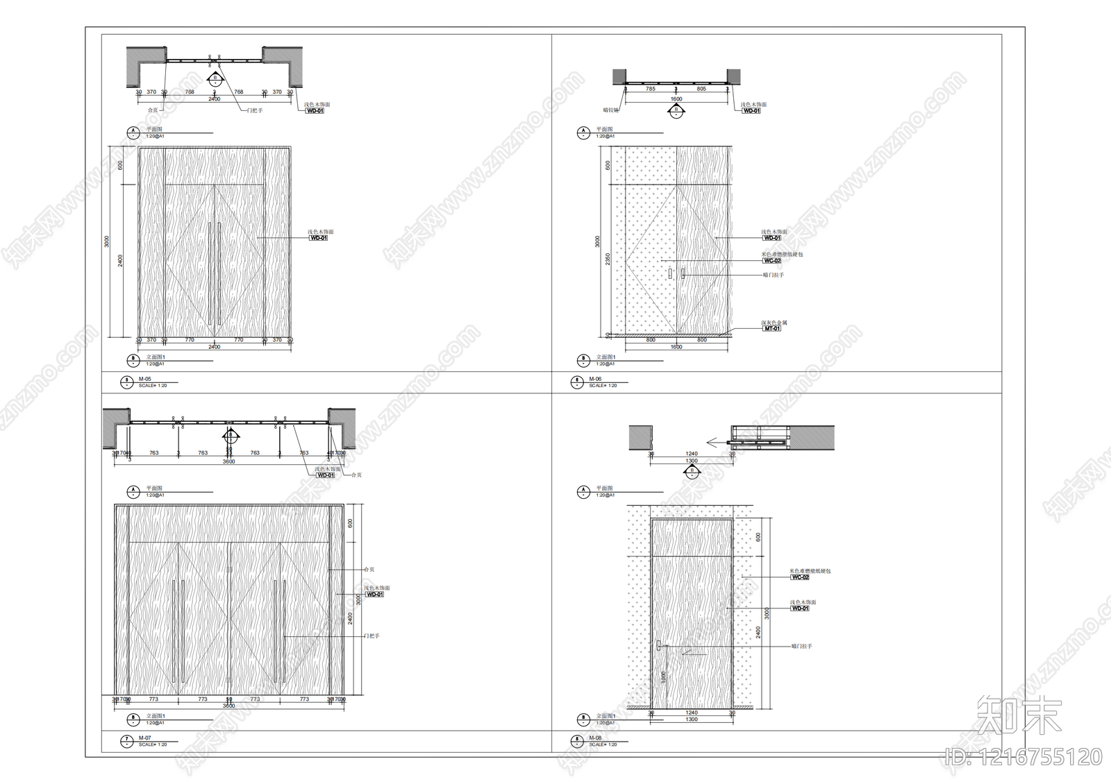
综合门节点 玻璃柜门节点 木门 消防门 暗门 施工图
1/
4
Previous
Next
综合门节点CAD下载
ID: 1216755120
复制
上传作者
NIMO
上传时间
2026-04-22
文件大小
2.09M
设计风格:
--
CAD版本:
CAD2010
包含文件:
CAD
授权
独家
立即下载
收藏
分享
举报
相关推荐
综合
门节点
综合门节点
入户门
铁艺大门
月洞门
玻璃门节点
推拉门节点
隐形门节点