CAD频道
CAD图库
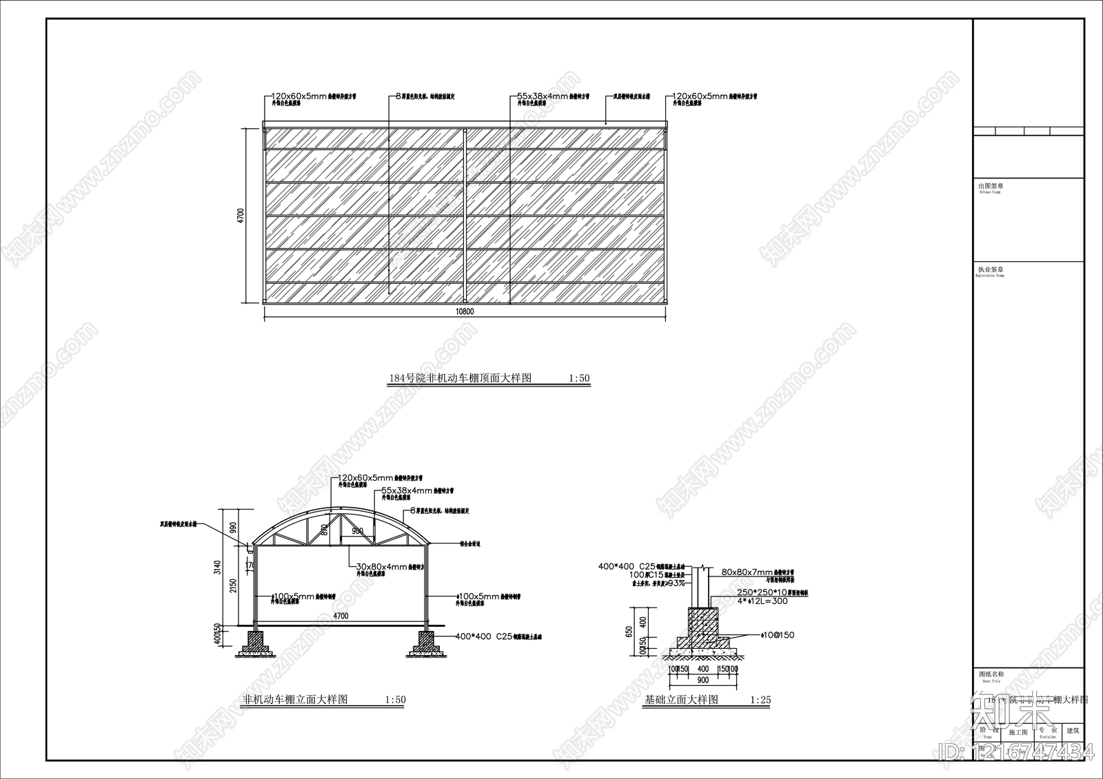
现代大棚 非机动车棚大样图 施工图
1/
4
Previous
Next
现代大棚CAD下载
ID: 1216747434
复制
上传作者
一鸣设计
上传时间
2026-04-22
文件大小
0.77M
设计风格:
--
CAD版本:
CAD2010
包含文件:
CAD
授权
独家
立即下载
收藏
分享
举报
相关推荐
综合
景观小品
大棚
亭子
廊架
景墙
综合景观小品
雨棚
围墙
挡土墙
入口