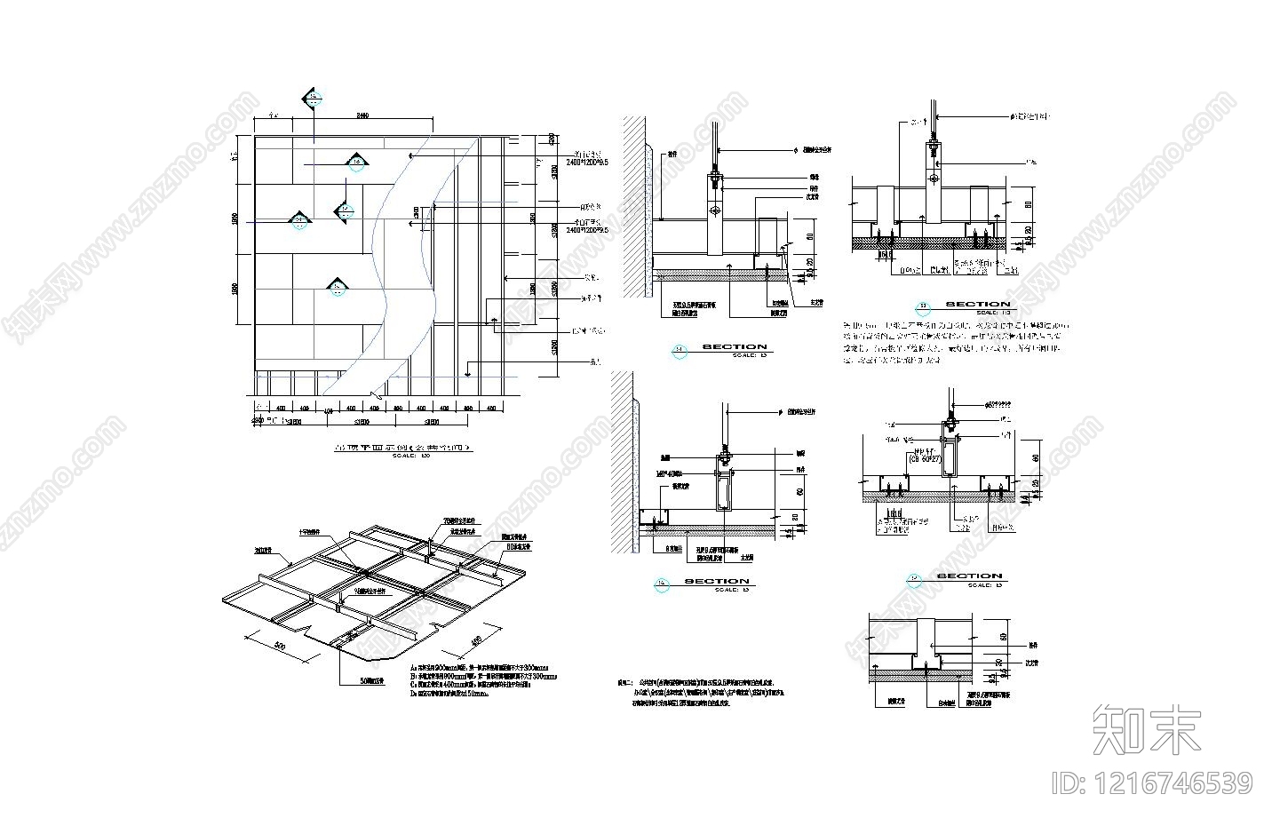
石膏板吊顶施工图下载【ID:1216746539】

石膏板吊顶CAD下载

ID: 1216746539
复制
上传作者
yongyong

上传时间2026-04-22

文件大小0.12M

设计风格:--

CAD版本:CAD2019

包含文件:CAD

授权独家

立即下载
收藏
分享
举报
相关推荐
综合
吊顶节点
石膏板吊顶
方通吊顶
格栅吊顶
扣板吊顶
软膜天花
铝单板吊顶
GRG吊顶节点
矿棉板吊顶