CAD频道
CAD图库
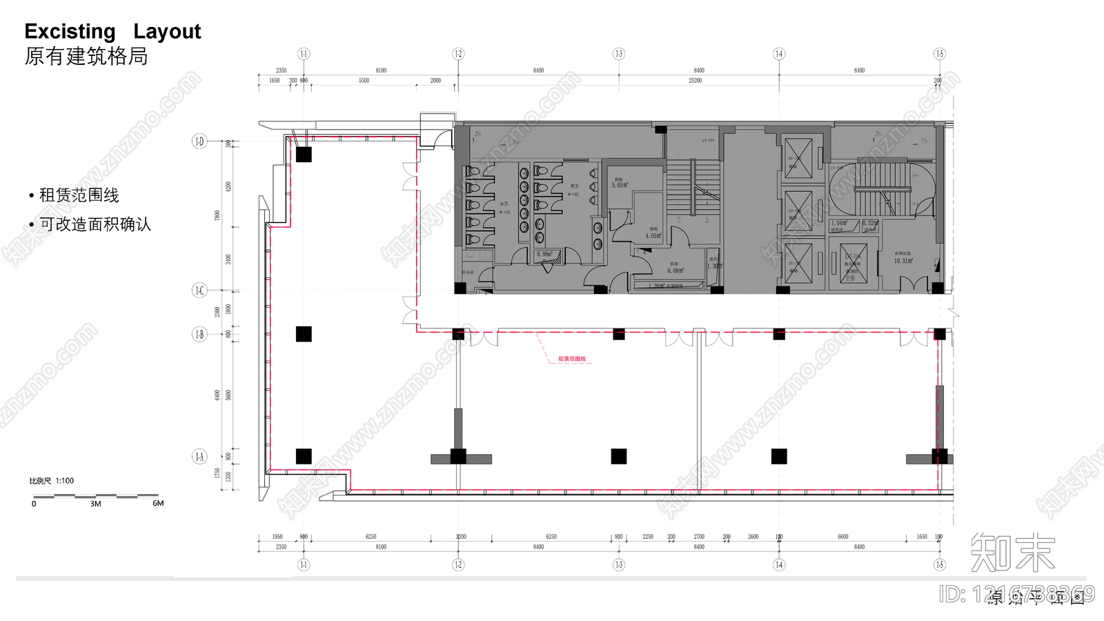
现代其他商业空间 文旅企业 总部办公 现代办公 室内设计 商业空间 施工...
1/
7
Previous
Next
现代其他商业空间CAD下载
ID: 1216738369
复制
上传作者
Felix
上传时间
2026-04-21
文件大小
0.91M
设计风格:
--
CAD版本:
CAD2004
包含文件:
CAD
授权
独家
立即下载
收藏
分享
举报
相关推荐
综合
商业空间
其他商业空间
售楼处
商场
超市
服装店
书店
美甲店
珠宝店
4s店