1/4


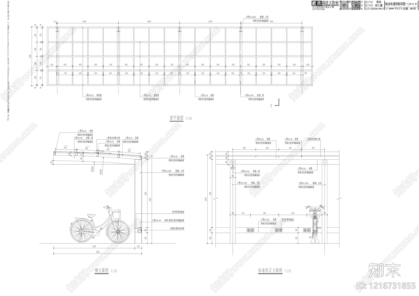
小区停车区CAD下载
ID: 1216731855
复制
上传作者
一里千寻
一里千寻上传时间2026-04-21
文件大小14.69M
设计风格:--
CAD版本:CAD2007
包含文件:CAD
授权独家
立即下载
收藏
分享
举报
相关推荐
综合
居住区景观
小区停车区
庭院
屋顶花园
示范区景观
售楼处景观
小区主入口
小区中心广场
宅间绿地
社区儿童区


一里千寻上传时间2026-04-21
文件大小14.69M
设计风格:--
CAD版本:CAD2007
包含文件:CAD
授权独家