CAD频道
CAD图库
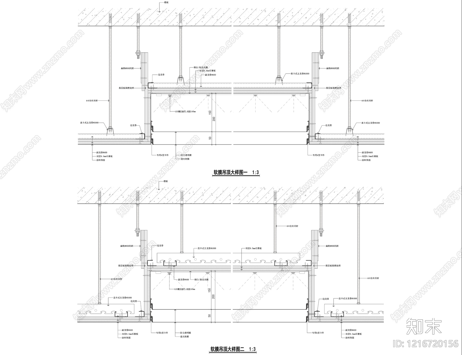
吊顶节点 软膜吊顶大样图 软膜灯箱 发光灯箱 发光吊顶 平顶节点 施工图
吊顶节点CAD下载
ID: 1216720156
复制
上传作者
SPRING
上传时间
2026-04-21
文件大小
2.23M
设计风格:
--
CAD版本:
CAD2004
包含文件:
CAD
授权
独家
立即下载
收藏
分享
举报
相关推荐
综合
吊顶节点
方通吊顶
格栅吊顶
扣板吊顶
软膜天花
铝单板吊顶
GRG吊顶节点
石膏板吊顶
矿棉板吊顶