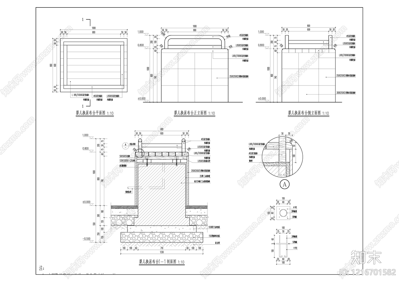
现代综合景观小品施工图下载【ID:1216701582】

现代综合景观小品CAD下载

ID: 1216701582
复制
上传作者
布布大王布布大王

上传时间2026-04-21

文件大小0.61M

设计风格:--

CAD版本:天正建筑 2014

包含文件:CAD

授权独家

立即下载
收藏
分享
举报
相关推荐
综合
景观小品
综合景观小品
亭子
廊架
景墙
雨棚
围墙
挡土墙
入口
景观坐凳