CAD频道
CAD图库
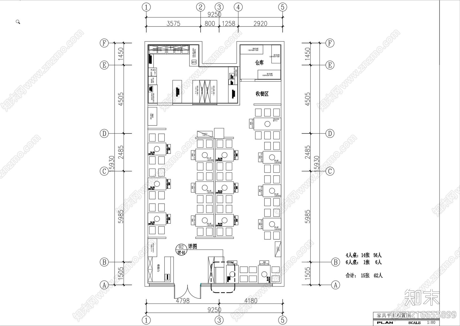
现代轻奢烤肉店 露营烤肉店 包厢 北木兰烤肉 现代烤肉店 施工图
现代轻奢烤肉店CAD下载
ID: 1216655899
复制
上传作者
旷野
上传时间
2026-04-20
文件大小
0.92M
设计风格:
--
CAD版本:
CAD2018
包含文件:
CAD
授权
独家
立即下载
收藏
分享
举报
相关推荐
综合
餐饮空间
烤肉店
中餐厅
西餐厅
快餐店
自助餐厅
茶餐厅
其他餐饮空间
食堂
奶茶店