CAD频道
CAD图库
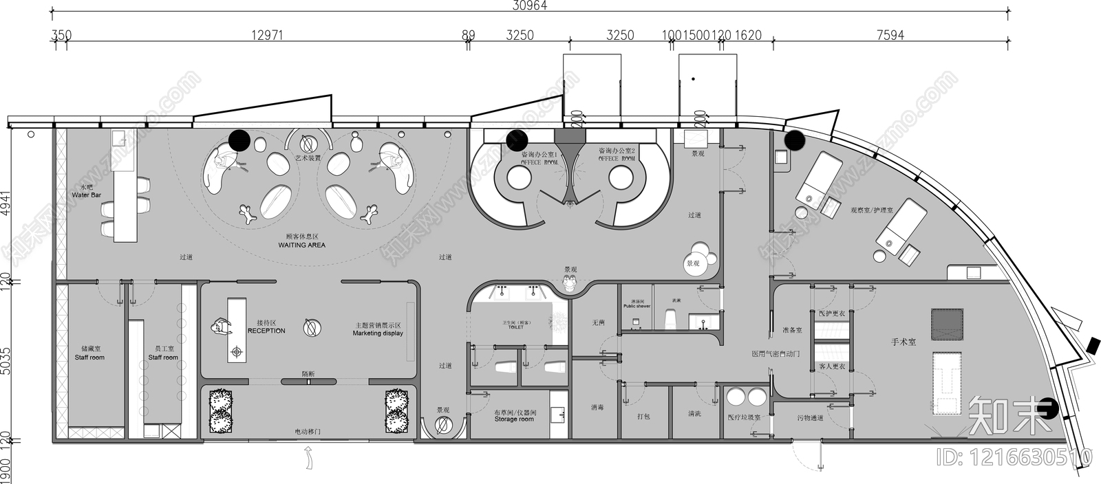
现代医院 牙科医院 社区医院 医院门诊 手术室 病房 施工图
现代医院CAD下载
ID: 1216630510
复制
上传作者
聆听小七
上传时间
2026-04-20
文件大小
0.56M
设计风格:
--
CAD版本:
CAD2005
包含文件:
CAD
授权
独家
立即下载
收藏
分享
举报
相关推荐
综合
医疗空间
医院
养老院
宠物医院
中医馆
月子中心
其他医疗空间