CAD频道
CAD图库
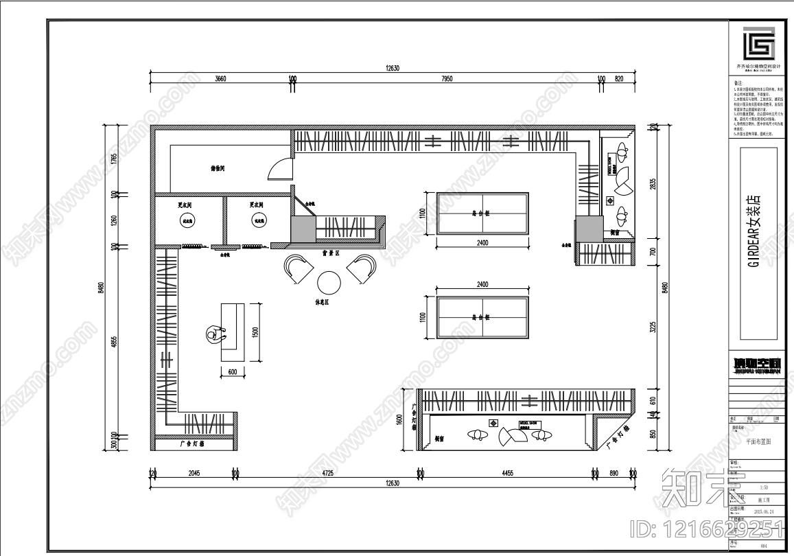
现代服装店 服装店 施工图
1/
3
Previous
Next
现代服装店CAD下载
ID: 1216629251
复制
上传作者
706222
上传时间
2026-04-20
文件大小
1.76M
设计风格:
--
CAD版本:
CAD2010
包含文件:
CAD
授权
独家
立即下载
收藏
分享
举报
相关推荐
综合
商业空间
服装店
售楼处
商场
其他商业空间
超市
书店
美甲店
珠宝店
4s店