CAD频道
CAD图库
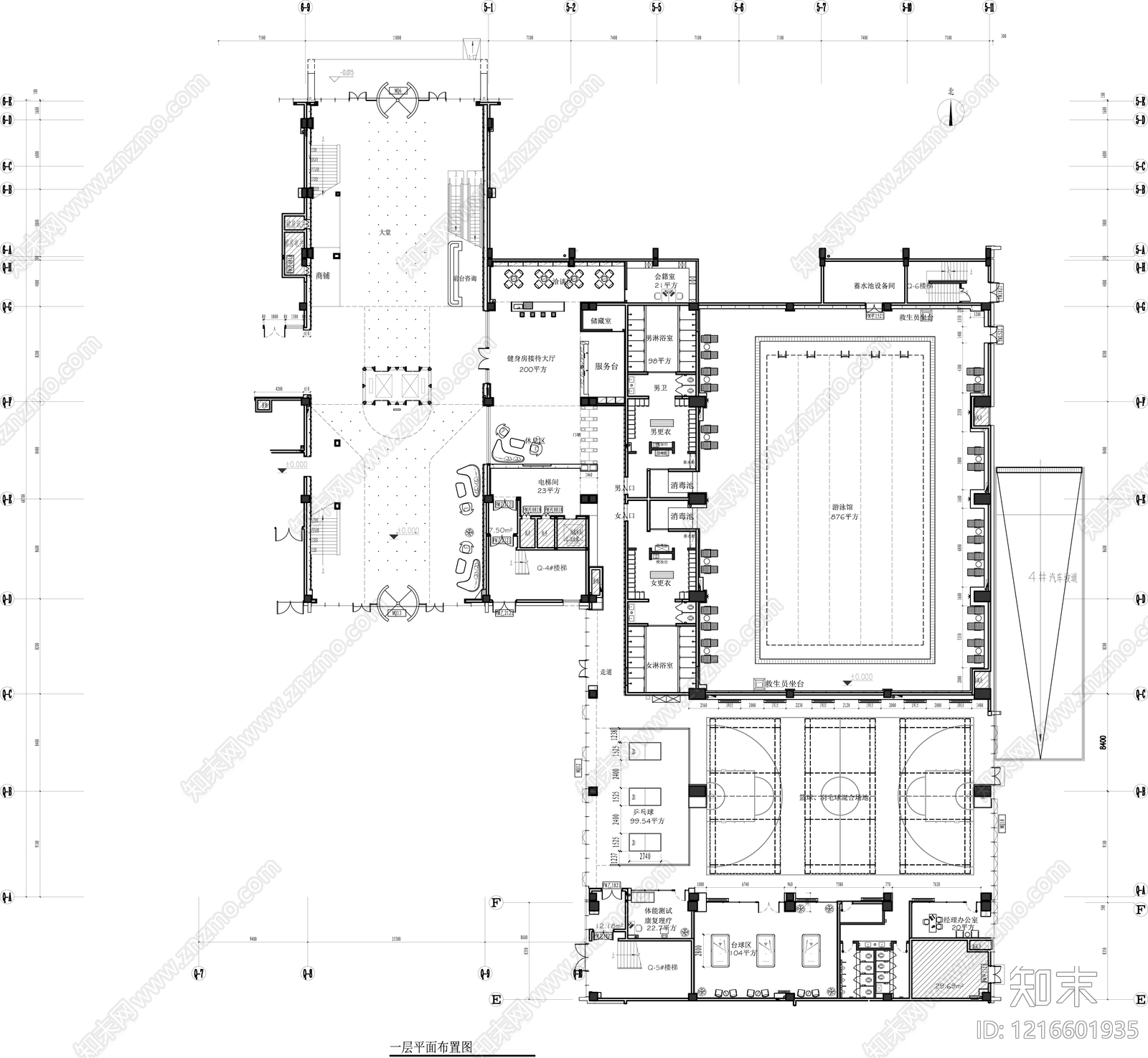
现代健身房 健身房平面系统图 施工图
1/
2
Previous
Next
现代健身房CAD下载
ID: 1216601935
复制
上传作者
一鸣设计
上传时间
2026-04-19
文件大小
3.37M
设计风格:
--
CAD版本:
CAD2010
包含文件:
CAD
授权
独家
立即下载
收藏
分享
举报
相关推荐
综合
休闲娱乐空间
健身房
会所
美容院
理发店
电影院
茶馆
KTV
酒吧
网吧