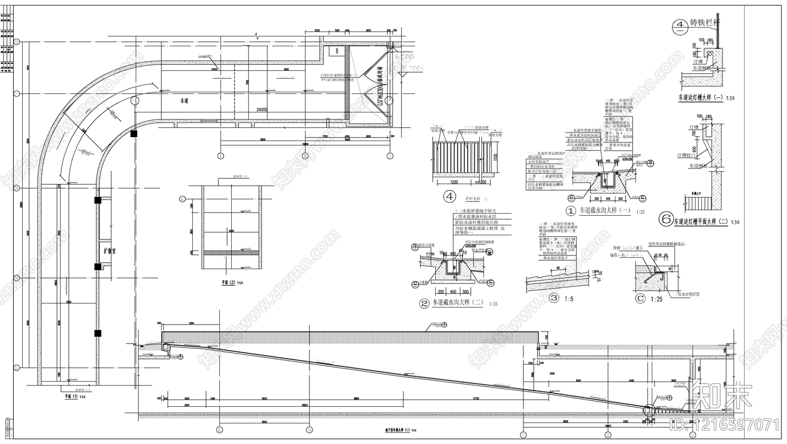
建筑综合节点施工图下载【ID:1216597071】

建筑综合节点CAD下载

ID: 1216597071
复制
上传作者
承诺不熬椰承诺不熬椰

上传时间2026-04-19

文件大小0.17M

设计风格:--

CAD版本:CAD2004

包含文件:CAD

授权独家

立即下载
收藏
分享
举报
相关推荐
综合
建筑工程节点
建筑综合节点
屋顶
柱子节点
吊装节点
斗拱节点
楼板节点
女儿墙节点
塔吊节点
天窗节点