CAD频道
CAD图库
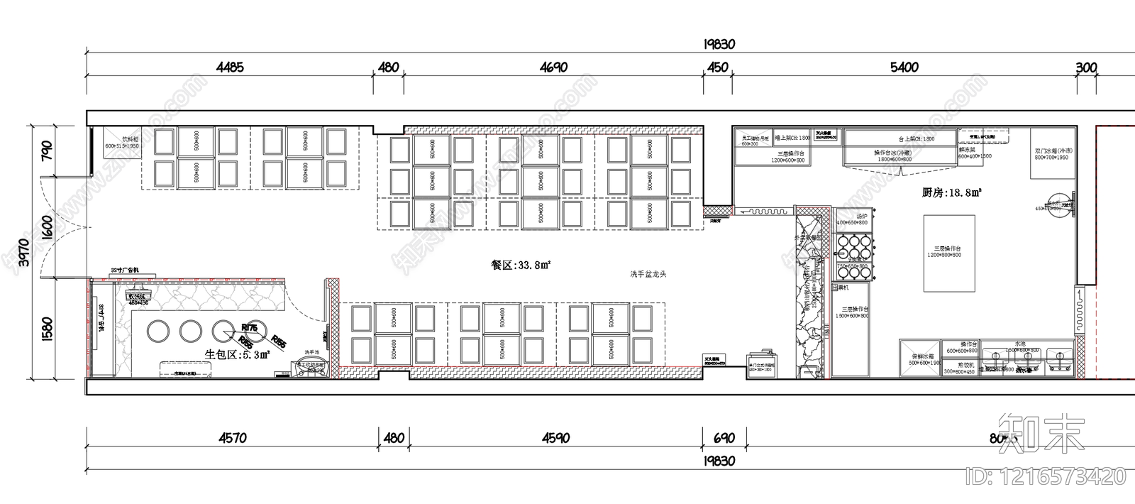
现代新中式快餐店 现代风格饺子店 现包饺子店 手工饺子店 饺子店 连锁饺...
现代新中式快餐店CAD下载
ID: 1216573420
复制
上传作者
旷野
上传时间
2026-04-18
文件大小
0.21M
设计风格:
--
CAD版本:
CAD2018
包含文件:
CAD
授权
独家
立即下载
收藏
分享
举报
相关推荐
综合
餐饮空间
快餐店
中餐厅
西餐厅
自助餐厅
茶餐厅
其他餐饮空间
食堂
奶茶店
咖啡厅