1/3


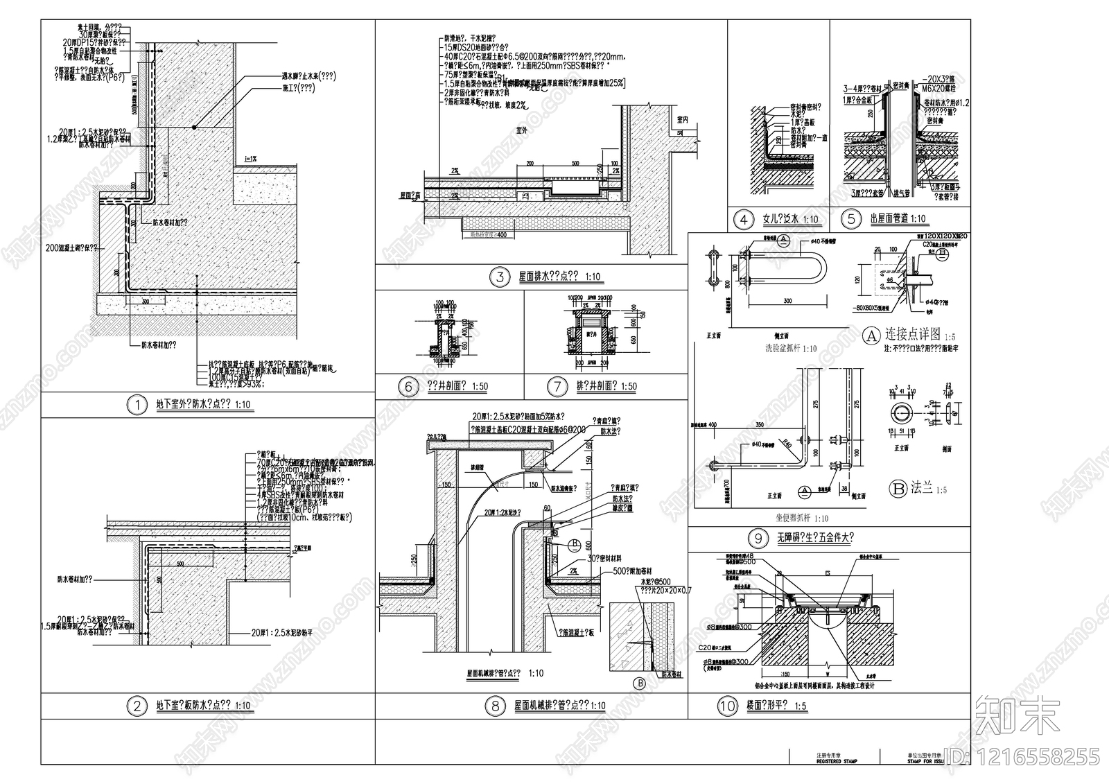
建筑综合节点CAD下载
ID: 1216558255
复制
上传作者
承诺不熬椰
承诺不熬椰上传时间2026-04-18
文件大小0.45M
设计风格:--
CAD版本:CAD2004
包含文件:CAD
授权独家
立即下载
收藏
分享
举报
相关推荐
综合
建筑工程节点
建筑综合节点
屋顶
柱子节点
吊装节点
斗拱节点
楼板节点
女儿墙节点
塔吊节点
天窗节点


承诺不熬椰上传时间2026-04-18
文件大小0.45M
设计风格:--
CAD版本:CAD2004
包含文件:CAD
授权独家