1/2


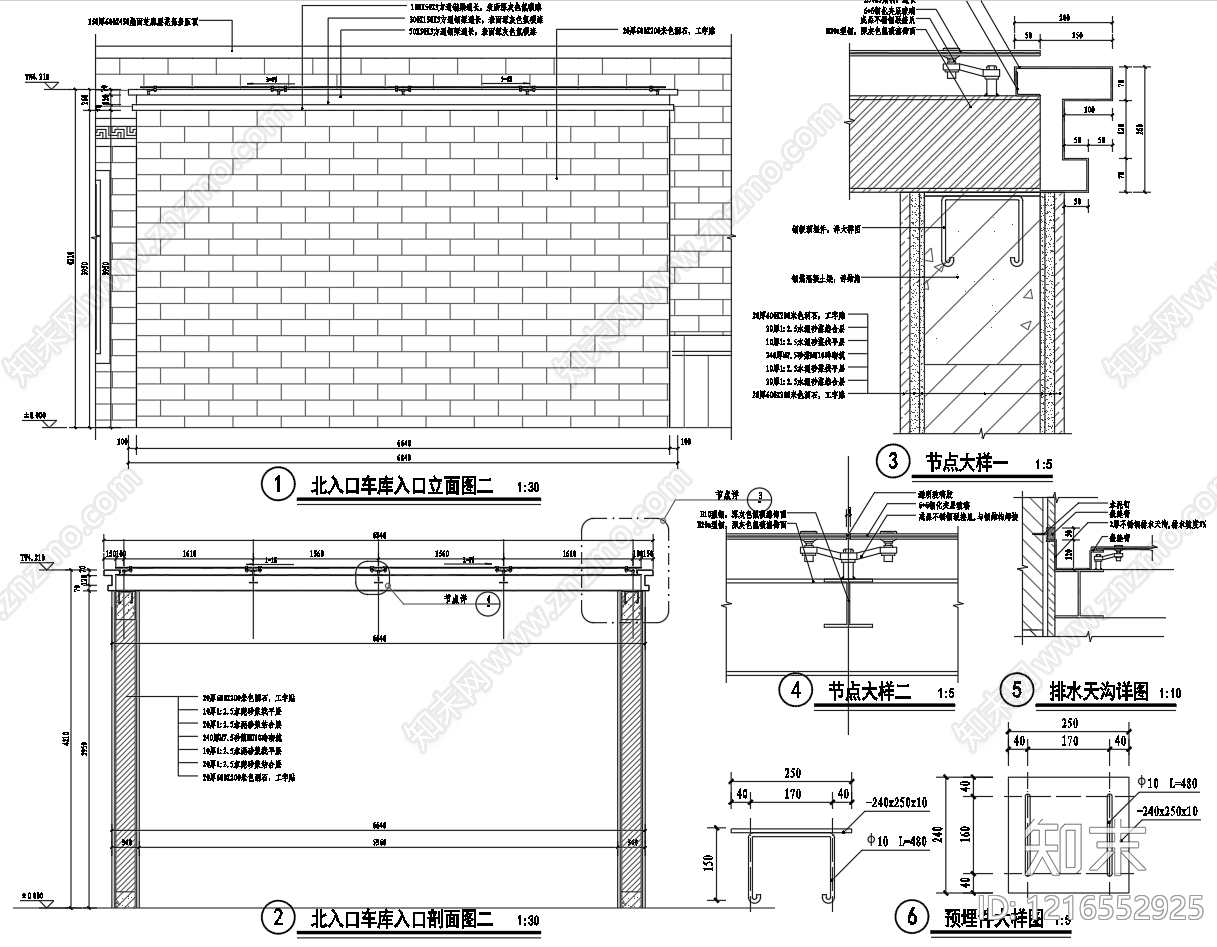
景观节点CAD下载
ID: 1216552925
复制
上传作者
卡皮巴拉
卡皮巴拉上传时间2026-04-18
文件大小0.26M
设计风格:--
CAD版本:T20 天正建筑 V5.0
包含文件:CAD
授权独家
立即下载
收藏
分享
举报
相关推荐
综合
节点详图
景观节点
吊顶节点
墙面节点
地面节点
门节点
其他节点详图
建筑工程节点
景观小品
楼梯节点


卡皮巴拉上传时间2026-04-18
文件大小0.26M
设计风格:--
CAD版本:T20 天正建筑 V5.0
包含文件:CAD
授权独家