CAD频道
CAD图库
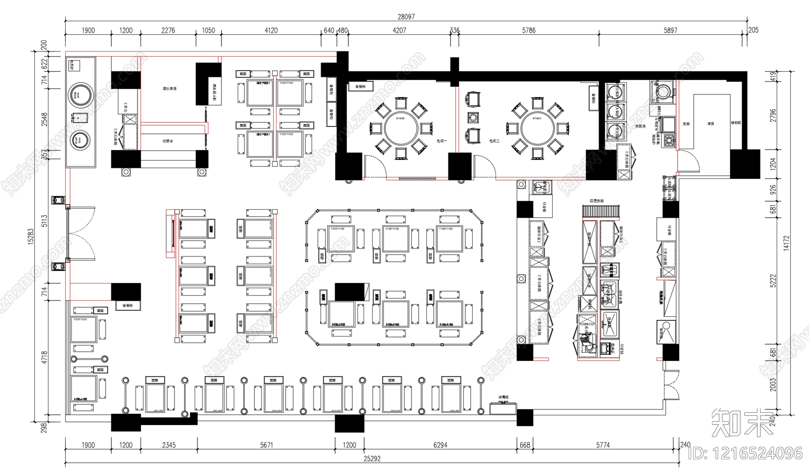
中式新中式火锅店 露营火锅店 户外火锅店 包厢 中式火锅店 施工图
中式新中式火锅店CAD下载
ID: 1216524096
复制
上传作者
旷野
上传时间
2026-04-17
文件大小
0.15M
设计风格:
--
CAD版本:
CAD2018
包含文件:
CAD
授权
独家
立即下载
收藏
分享
举报
相关推荐
综合
餐饮空间
火锅店
中餐厅
西餐厅
快餐店
自助餐厅
茶餐厅
其他餐饮空间
食堂
奶茶店