CAD频道
CAD图库
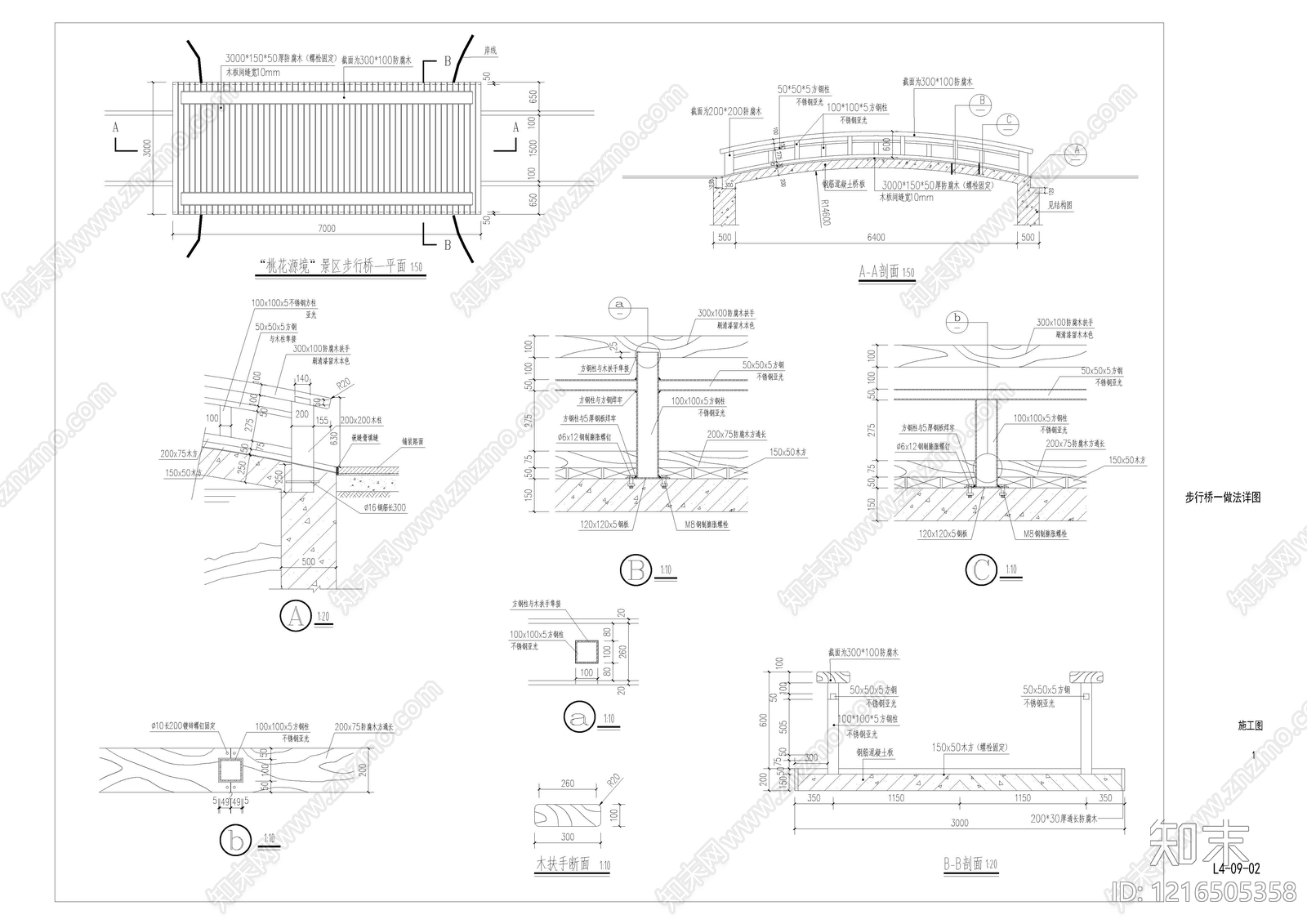
现代景观桥 木桥 平桥 景观桥 施工图
1/
2
Previous
Next
现代景观桥CAD下载
ID: 1216505358
复制
上传作者
-小太阳-
上传时间
2026-04-17
文件大小
0.24M
设计风格:
--
CAD版本:
CAD2014
包含文件:
CAD
授权
独家
立即下载
收藏
分享
举报
相关推荐
综合
景观小品
景观桥
亭子
廊架
景墙
综合景观小品
雨棚
围墙
挡土墙
入口