CAD频道
CAD图库
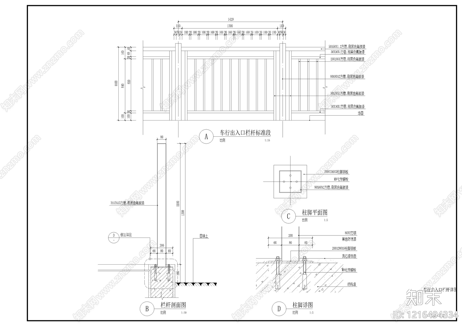
现代栏杆 车库出入口 地下室出入口栏杆 栏杆标准段 车库栏杆 施工图
1/
2
Previous
Next
现代栏杆CAD下载
ID: 1216494334
复制
上传作者
景观设计素材
上传时间
2026-04-17
文件大小
1.01M
设计风格:
--
CAD版本:
天正建筑 2014
包含文件:
CAD
授权
独家
立即下载
收藏
分享
举报
相关推荐
综合
景观小品
栏杆
亭子
廊架
景墙
综合景观小品
雨棚
围墙
挡土墙
入口