CAD频道
CAD图库
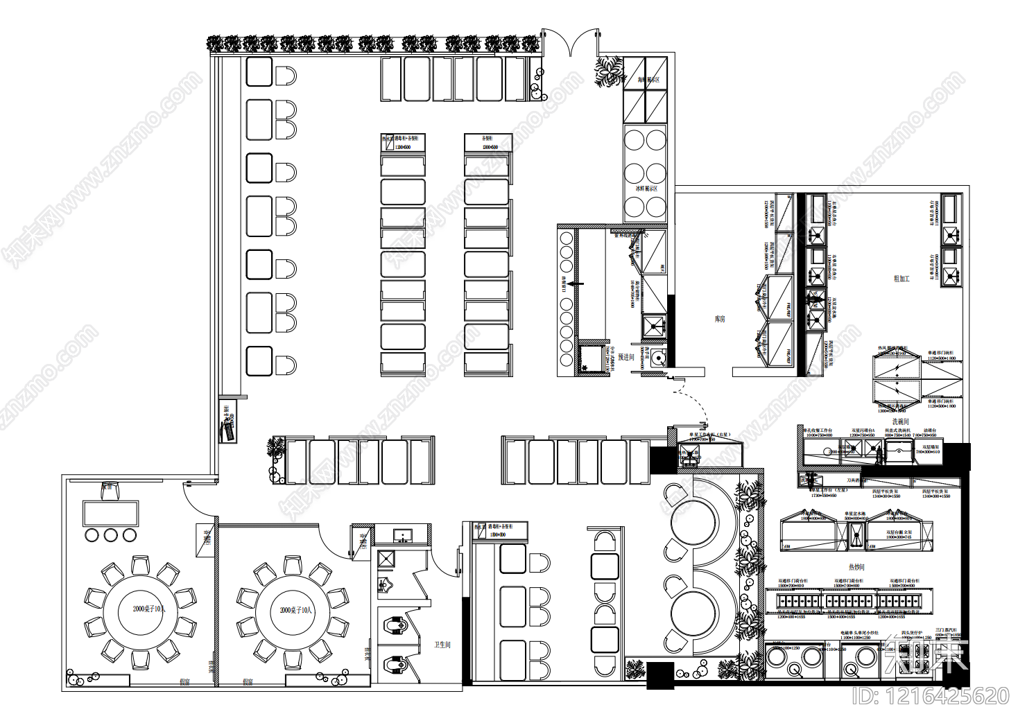
现代侘寂中餐厅 包厢 诧寂风中餐厅 烧烤火锅店 中餐厅后厨图纸 网红极简...
现代侘寂中餐厅CAD下载
ID: 1216425620
复制
上传作者
67343903
上传时间
2026-04-15
文件大小
0.43M
设计风格:
--
CAD版本:
CAD2024
包含文件:
CAD
授权
独家
立即下载
收藏
分享
举报
相关推荐
综合
平面图
工装平面图
景观平面图
规划平面图
其他平面图
小区平面图