1/4


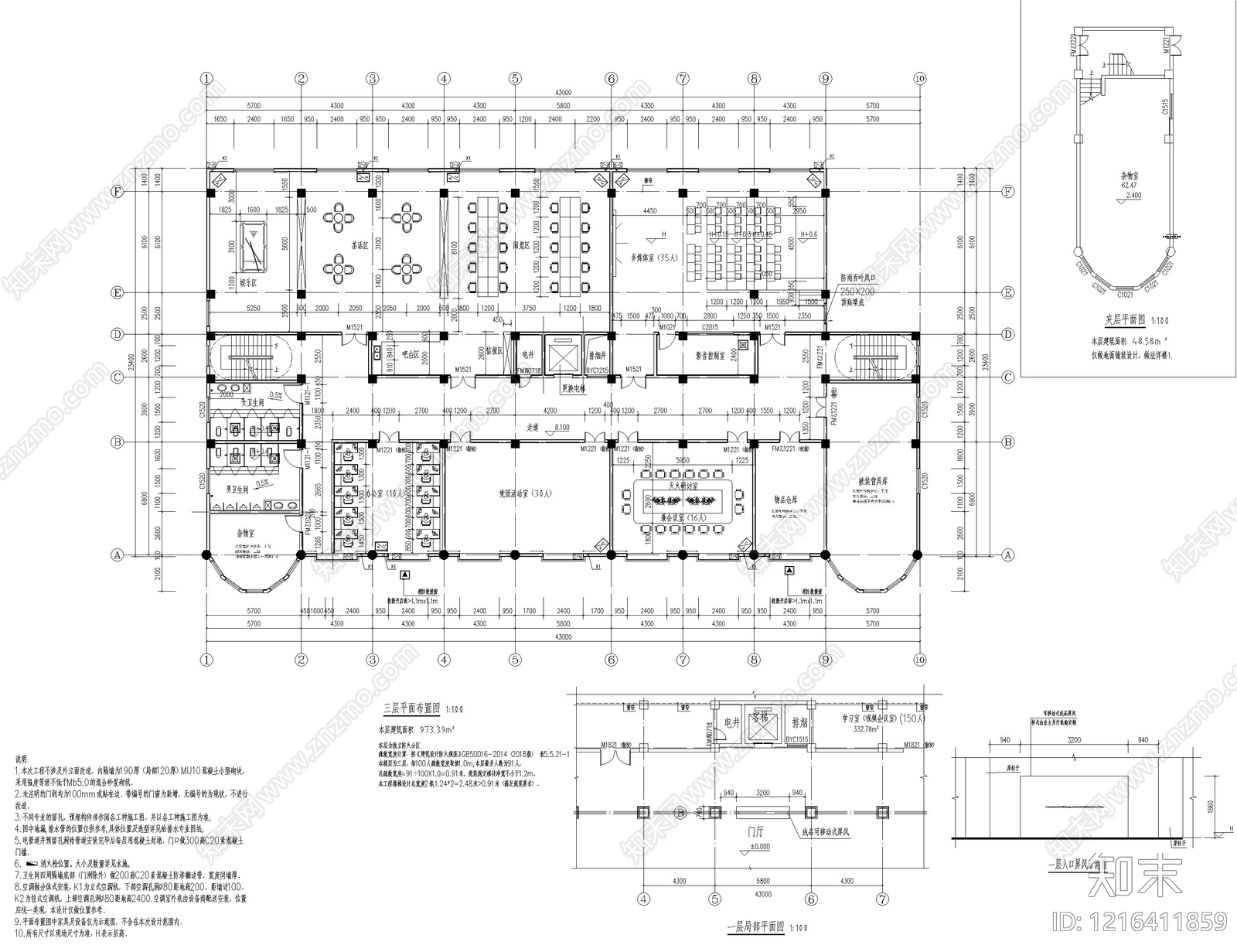
消防站CAD下载
ID: 1216411859
复制
上传作者
我很中意泥啊-
我很中意泥啊-上传时间2026-04-15
文件大小1.86M
设计风格:--
CAD版本:天正建筑 2020
包含文件:CAD
授权独家
立即下载
收藏
分享
举报
相关推荐
综合
公共建筑
消防站
会议中心建筑
公厕
行政机构建筑
其他公共建筑
医院建筑
门卫室建筑
停车楼
集装箱


我很中意泥啊-上传时间2026-04-15
文件大小1.86M
设计风格:--
CAD版本:天正建筑 2020
包含文件:CAD
授权独家