CAD频道
CAD图库
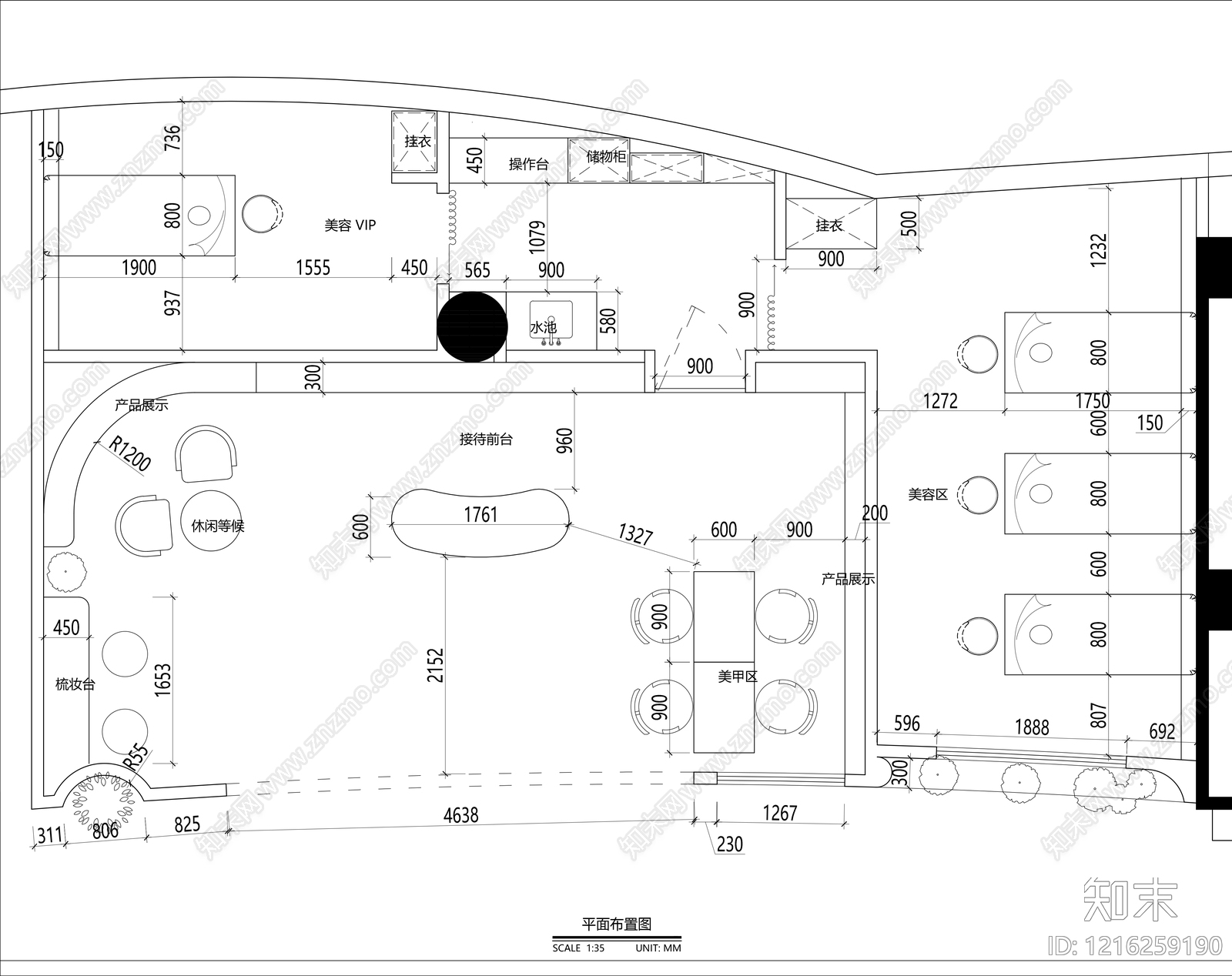
奶油美甲店 70平美容店 奶油风美容美甲店 网红 商场美容店 施工图
奶油美甲店CAD下载
ID: 1216259190
复制
上传作者
Terrence
上传时间
2026-04-13
文件大小
1.14M
设计风格:
--
CAD版本:
CAD2017
包含文件:
CAD
授权
独家
立即下载
收藏
分享
举报
相关推荐
综合
商业空间
美甲店
售楼处
商场
其他商业空间
超市
服装店
书店
珠宝店
4s店