1/5


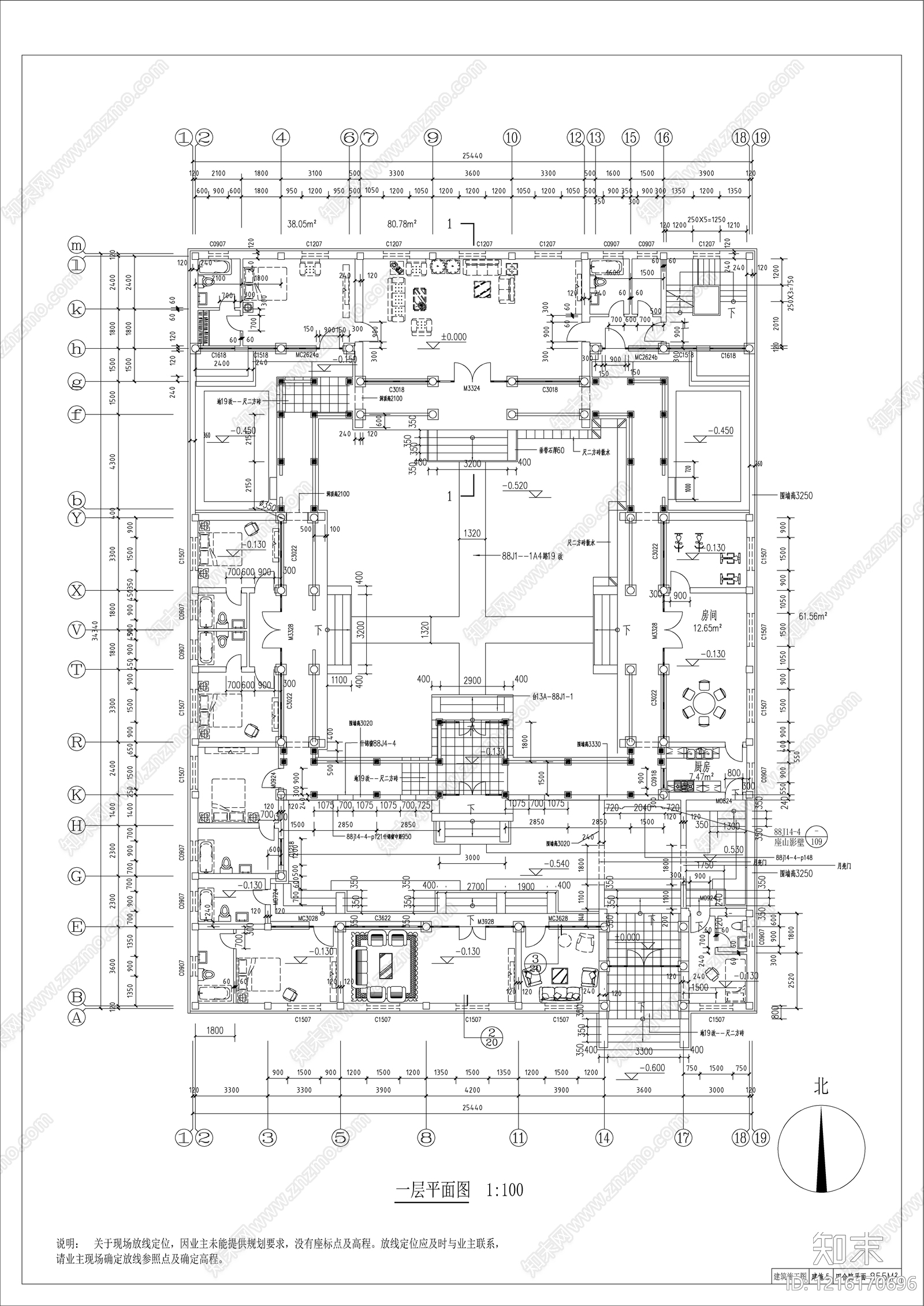
现代四合院CAD下载
ID: 1216170696
复制
上传作者
25755012221728
25755012221728上传时间2026-04-10
文件大小5.75M
设计风格:--
CAD版本:CAD2004
包含文件:CAD
授权独家
立即下载
收藏
分享
举报
相关推荐
综合
居住建筑
四合院
住宅楼建筑
别墅建筑
其他居住建筑
高层住宅
多层住宅
低层住宅
公寓建筑
联排住宅


25755012221728上传时间2026-04-10
文件大小5.75M
设计风格:--
CAD版本:CAD2004
包含文件:CAD
授权独家