1/7


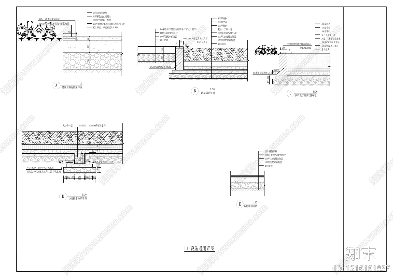
现代其他节点详图CAD下载
ID: 1216161837
复制
上传作者
常威打来福
常威打来福上传时间2026-04-10
文件大小1.25M
设计风格:--
CAD版本:天正建筑 2021
包含文件:CAD
授权独家
立即下载
收藏
分享
举报
相关推荐
综合
节点详图
其他节点详图
吊顶节点
墙面节点
地面节点
门节点
建筑工程节点
景观小品
楼梯节点
水景


常威打来福上传时间2026-04-10
文件大小1.25M
设计风格:--
CAD版本:天正建筑 2021
包含文件:CAD
授权独家